Продава се Двустаен апартамент в Пловдив, Тракия – 99 кв.м за 1052 €/кв.м

  • 104,065€
  • 1,051€/m²
Област Пловдив, гр. Пловдив, Тракия
  • Апартамент
  • Тип на имота
  • 99
  • кв.м
  • 2027
  • Година на строителство
За продажба Агенция
Област Пловдив, гр. Пловдив, Тракия
  • 104,065€
  • 1,051€/m²

Накратко за имота

  • Апартамент
  • Тип на имота
  • 99
  • кв.м
  • 2027
  • Година на строителство

Описание

Компания X представя на Вашето внимание двустаен апартамент в кв.Тракия.

МЕСТОПОЛОЖЕНИЕ: Квартал Тракия е един от живописните и желани райони за живеене в Пловдив, като предлага комбинация от удобства, съвременен начин на живот и зеленина. Локацията на имота е с отлична инфраструктура, пешаходни и вело алеи, паркове и широки булевари с много добре развита транспортна мрежа.

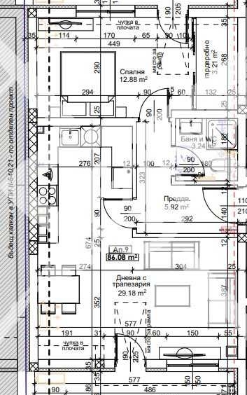
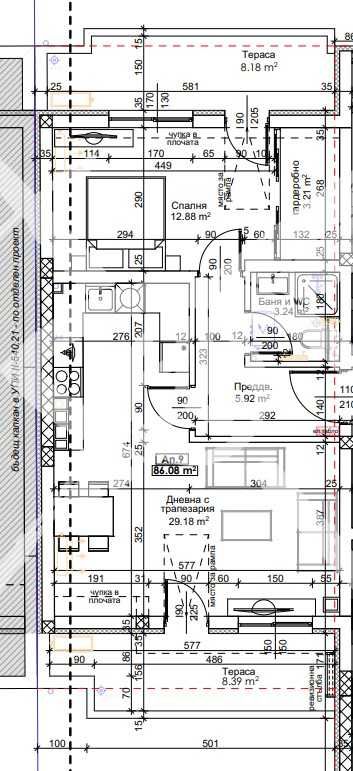
СТРОИТЕЛСТВО: Апартаментът се намира на 3-ти етаж, в новостроящ се жилищен комплекс.

РАЗПРЕДЕЛЕНИЕ: Жилището разполага с площ от 99 кв.м., разпределена в преддверие, дневна с кухненски бокс, спалня с гардеробно, баня с тоалетна и две тераси.

СЪСТОЯНИЕ: В строеж!

СХЕМА НА ПЛАЩАНЕ:

35% при подписване на предварителен договор

35% на акт 14

30% на акт 15 и прехвърляме на акт 15

Заповядайте да Ви го покажем. Използвайки нашите услуги Вие ще превърнете закупуването на новия си дом в едно приятно изживяване, ще получите персонален консултант, съдействие при кандидатстване за кредит от всички банки в България, интериорни дизайнери и екип, който да се погрижи за нужните документи по Вашата сделка. На Ваше разположение сме всеки ден, от понеделник до неделя от 09:00 до 20:00ч. Възползвайте се от безплатна консултация в наш офис, където ще ви спестим време и ще ви запознаем с всички актуални имоти в България, отговарящи на Вашето търсене. Свържете се с нас на 08******90 или на 08******90 и цитирайте кода към имота: 1140- 33401

Детайли

Обновено на януари 1, 1970 в 12:00 am
  • Цена: 104,065€
  • Квадратура: 99 кв.м
  • Стаи: 2
  • Година на строителство: 2027
  • Тип на имота: Апартамент
  • Операция: За продажба

Допълнителни детайли

  • Строителство: Тухла
  • Етаж: 3-ти
  • Брой етажи на сградата: 8
  • Отопление: Електричество
  • Обзавеждане: Необзаведен
  • Състояние на сградата: В строеж
  • Преход: Без преход
  • Град Пловдив
  • Област Област Пловдив
  • Квартал Тракия
  • Държава България

0 Отзив

Sort by:
Leave a Review

    Leave a Review

    Compare listings

    Сравняване
    Olx Недвижими Имоти
    • Olx Недвижими Имоти