Продава се Двустаен апартамент в Поморие – 60 кв.м за 2533 €/кв.м

  • 151,956€
  • 2,533€/m²
Област Бургас, гр. Поморие
  • Апартамент
  • Тип на имота
  • 60
  • кв.м
  • 2025
  • Година на строителство

Накратко за имота

  • Апартамент
  • Тип на имота
  • 60
  • кв.м
  • 2025
  • Година на строителство

Описание

Компания Х представя на Вашето внимание двустаен апартамент Поморие.

МЕСТОПОЛОЖЕНИЕ:.. Поморие предлага уникално съчетание от красиви плажове, минерални извори и исторически забележителности, което го прави привлекателно за туристи. Освен това, спокойната атмосфера и близостта до Бургас го правят лесно достъпно място за почивка.

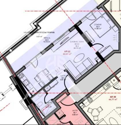
СТРОИТЕЛСТВО: Апартаментът е разположен на пети етаж, тухла.

РАЗПРЕДЕЛЕНИЕ: Жилището разполага с площ 60,97 кв.м., състои се от хол с кухня, спалня, баня с тоалетнаи тераса.

СЪСТОЯНИЕ: Имотът се предлага както на тапа, така и на степен до ключ,

което Ви дава възможността да го усторите по Ваш вкус и да го превърнете

в мечтания дом!

Заповядайте да Ви го покажем. Използвайки нашите услуги Вие ще

превърнете закупуването на новия си дом в едно приятно изживяване, ще

получите персонален консултант, съдействие при кандидатстване за кредит

от всички банки в България, интериорни дизайнери и екип, който да се

погрижи за нужните документи по Вашата сделка. На Ваше разположение сме

всеки ден, от понеделник до неделя от 09:00 до 20:00ч. Възползвайте се

от безплатна консултация в наш офис, където ще ви спестим време и ще ви

запознаем с всички актуални имоти в България, отговарящи на Вашето

търсене. Свържете се с нас на 08******90 или на 08******83 и цитирайте

кода към имота: 777 – 23273

Детайли

Обновено на януари 1, 1970 в 12:00 am
  • Цена: 151,956€
  • Квадратура: 60 кв.м
  • Стаи: 2
  • Година на строителство: 2025
  • Тип на имота: Апартамент
  • Операция: За продажба

Допълнителни детайли

  • Строителство: Тухла
  • Етаж: 5-ти
  • Брой етажи на сградата: 6
  • Отопление: Електричество
  • Обзавеждане: Необзаведен
  • Състояние на сградата: В строеж
  • Преход: Без преход
  • Град Поморие
  • Област Област Бургас
  • Държава България

0 Отзив

Sort by:
Leave a Review

    Leave a Review

    Compare listings

    Сравняване
    Olx Недвижими Имоти
    • Olx Недвижими Имоти