Компания Х представя на Вашето внимание двустаен апартамент в Поморие.
МЕСТОПОЛОЖЕНИЕ: Поморие е популярна туристическа дестинация с дълга плажна ивица, множество хотели, заведения и развлечения, както и лесен достъп до исторически и културни забележителности.
СТРОИТЕЛСТВО: Апартаментът е разположен на втори етаж, тухла.
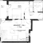
РАЗПРЕДЕЛЕНИЕ: Жилището разполага с площ 65кв.м., състои се от хол с кухненски бокс, спалня, баня с тоалетна и тераса.
СЪСТОЯНИЕ: Имотът се предлага напълно обзаведен, готов за нанасяне или отдаване под наем, което го превръща в перфектната инвестиция!
Заповядайте да Ви го покажем. Използвайки нашите услуги Вие ще превърнете закупуването на новия си дом в едно приятно изживяване, ще получите персонален консултант, съдействие при кандидатстване за кредит от всички банки в България, интериорни дизайнери и екип, който да се погрижи за нужните документи по Вашата сделка. На Ваше разположение сме всеки ден, от понеделник до неделя от 09:00 до 20:00ч. Възползвайте се от безплатна консултация в наш офис, където ще ви спестим време и ще ви запознаем с всички актуални имоти в България, отговарящи на Вашето търсене. Свържете се с нас и цитирайте кода към имота: 74242
Compare listings
Сравняване