БЕЗ КОМИСИОНА ОТ КУПУВАЧА !!!
ЕРА Недвижими имоти – офис Лидер има удоволствието да Ви представи апартамент Б-4, разположен на трети етаж (втори жилищен) в сграда, която преминава през цялостна реконструкция по модерен архитектурен проект, съчетаващ функционално разпределение, естетика и високо качество на изпълнение.
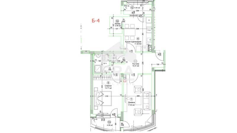
Жилището е с обща площ от 102 кв.м., включва самостоятелен склад от 5 кв.м., разположен в сутерена, както и 37 кв.м. идеални части от поземления имот.
Функционалното вътрешно разпределение предлага комфорт и удобство за съвременно градско обитаване. Апартаментът се състои от просторна кухня с трапезария, отделна дневна зона, уютна спалня и тераса с достъп както от дневната, така и от спалнята, осигуряваща отлична естествена осветеност и възможност за отдих на открито.
На разположение на бъдещите собственици са още обединено санитарно помещение с баня и тоалетна, както и отделно перално помещение, практично отделено от основните жилищни пространства.
Сградата ще бъде завършена с внимание към всеки детайл – модерна фасада, луксозни общи части, енергийно ефективни решения и възможност за закупуване на гараж, което прави имота отличен избор както за лично ползване, така и като дългосрочна инвестиция.
Разположена в спокоен, но централен район на гр. Русе, сградата предлага бърз достъп до ключови административни и търговски обекти, учебни заведения и удобен градски транспорт.
Заповядайте да Ви го покажем! Използвайки услугите на агенция за недвижими имоти ЕРА Лидер Вие ще превърнете закупуването на новия си дом в едно приятно изживяване, като получите персонален консултант, който ще се запознае от близо с Вашите изисквания. Възползвайте се от безплатна консултация в нашия офис, където ще ви спестим време , средства и ще Ви запознаем с всички актуални имоти в гр. Русе, отговарящи на Вашето търсене.
ОБАДЕТЕ СЕ ОЩЕ СЕГА ЗА ОГЛЕД: 08********66 Всеки имот предлаган от ЕРА е проверен, посетен на място и заснет от наш консултант. ЕРА е лицензиран КРЕДИТЕН ПОСРЕДНИК и предлага БЕЗПЛАТНА консултация на своите клиенти! Всеки имот предлаган от ЕРА е проверен, посетен на място и заснет от наш консултант. ЕРА Е РЕГИСТРИРАН КЪМ БНБ КРЕДИТЕН ПОСРЕДНИК И КАТО ТАКЪВ ОФИЦИАЛНО ПРЕДОСТАВЯ ВСИЧКИ ВИДОВЕ КРЕДИТИ КЪМ ВСИЧКИ БАНКИ БЕЗПЛАТНО!!! ОБАДЕТЕ СЕ ОЩЕ СЕГА ЗА ОГЛЕД: 08********66
Оферта №6700247
Compare listings
Сравняване