Компания `ЕКС` представя на Вашето внимание двустаен апартамент в ж.к. Банишора.
МЕСТОПОЛОЖЕНИЕ: В близост до училище, детска градина, метростанция, спирки на градски транспорт, магазини от всякакъв тип.
СТРОИТЕЛСТВО: Апартаментът е ситуиран на 4-ти етаж в новострояща се тухлена сграда с очакван АКТ 16 през октомври 2025 г.
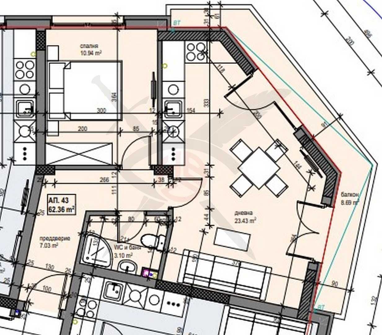
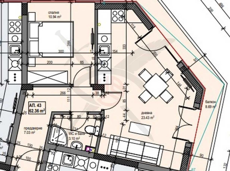
РАЗПРЕДЕЛЕНИЕ: Жилището разполага с площ от 73 кв.м., разпределена във входно антре, дневна с трапезария и кухненска част, спално помещение, баня с тоалетна и тераса.
Особености: Към имота може да бъде закупено паркомясто.
Заповядайте, да Ви го покажем. Използвайки нашите услуги, Вие ще превърнете закупуването на новия си дом в едно приятно изживяване, ще получите персонален консултант, съдействие при кандидатстване за кредит от всички банки в България, интериорни дизайнери и екип, който да се погрижи за нужните документи по Вашата сделка. На Ваше разположение сме всеки ден, от понеделник до неделя от 09:00 до 20:00ч. Възползвайте се от безплатна консултация в наш офис, където ще Ви спестим време и ще Ви запознаем с всички актуални имоти в България, отговарящи на Вашето търсене. Свържете се с нас на 08*********90 или на 08*********57 и цитирайте кода към имота: 1021-29760.
Compare listings
Сравняване