БЕЗ КОМИСИОН ОТ КУПУВАЧА!
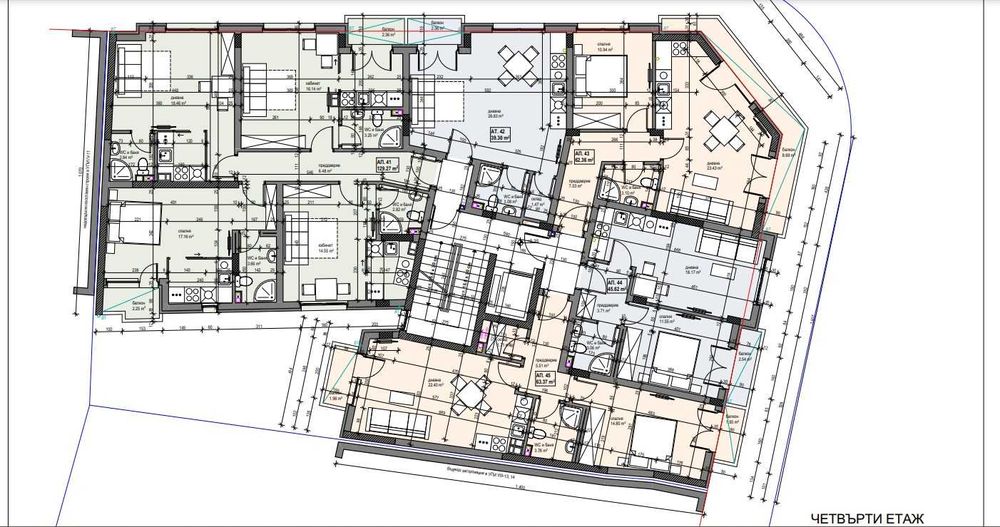
Проектът представлява 7-етажна луксозна жилищна сграда с подземен паркинг и с гаражи над терена. Сградата ще осигурява максимално удобство и сигурност на живеещите в нея. Бутиково изпълнение с 26 апартамента, от които ателиета и апартаменти с 1 и 2 спални. За строителството ще се използват само висококачествени материали.
Сградата ще бъде изградена на много комуникативно място в ж.к.Банишора. Районът е тих и спокоен. Локацията предоставя изключително лесен достъп до идеалния център на София, спирки на градски транспорт, търговски обекти, училища и до всички части на града.
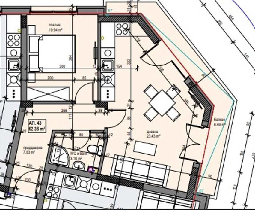
Апартамент 43 е с обща площ 73.12 кв.м., застроена площ 62.36кв.м. Разпределение на имота – коридор (7,03 кв.м), дневна с кухненски бокс (23,43 кв.м) с излаз на тераса (8,69 кв.м), самостоятелна спалня (10,94), баня с тоалетна (3,10 кв.м), мазе (1,7кв.м).
Отоплението е на ток.
Апартаментите се предлагат в следната степен на завършеност: стени и тавани машинна шпакловка, подово покритие циментова замазка, ПВЦ дограма, блиндирани входни врати, ВиК положени тръби до тапа, отопление. Монтирани ел.ключове и ел.контакти, както и пълно окабеляване.
Предлагаме БЕЗПЛАТНО СЪДЕЙСТВИЕ за одобрение и получаване на ипотечен кредит за покупка на имот при най-добри условия за Вас, чрез услугите на лицензиран кредитен консултант!
Допълнителни услуги и следпродажбено обслужване – безкомисионно отдаване на имота под наем, строителни и ремонтни дейности, консултация и проекти с инжинерен дизайнер и ландшафтен архитект.
Compare listings
Сравняване