Продава се Двустаен апартамент в София, Фондови жилища – 65 кв.м за 1924 €/кв.м

  • 125,000€
  • 1,923€/m²
Област София-град, гр. София, Фондови жилища
  • Апартамент
  • Тип на имота
  • 65
  • кв.м
  • 1984
  • Година на строителство
За продажба Агенция
Област София-град, гр. София, Фондови жилища
  • 125,000€
  • 1,923€/m²

Накратко за имота

  • Апартамент
  • Тип на имота
  • 65
  • кв.м
  • 1984
  • Година на строителство

Описание

Реф. № 012060

Агенция за недвижими имоти BAS Properties предлага за продажба двустаен апартамент, разположен в жк. Фондови жилища, гр. София. Имотът е ситуиран на първи етаж в тухлена сграда с асансьор и разполага с функционално разпределение и потенциал за ремонт според индивидуалните нужди.

Основни характеристики:

– Тип имот: Двустаен Апартамент

– Местоположение: жк. Фондови жилища, гр. София

– Площ: 65 кв.м.

– Строителство: Панел, 1984 г.

– Етаж: 4 от 8

– Отопление: ТЕЦ и Електричество

– Изложение: Изток / Запад

– Асансьор: Да

– Състояние: За ремонт

– Обзавеждане: Необзаведен

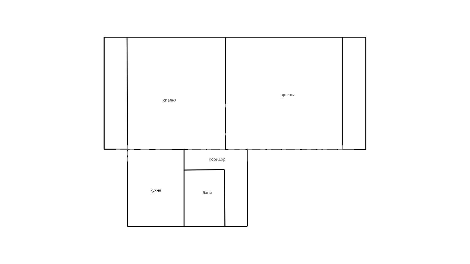
Разпределение:

– Коридор

– Дневна

– Кухня

– Спалня

– Баня с тоалетна

– Два балкона

За повече информация и организиране на огледи, моля свържете се с нас!

*Безплатно съдействие при кредитиране от банка.

Детайли

Обновено на януари 1, 1970 в 12:00 am
  • Цена: 125,000€
  • Квадратура: 65 кв.м
  • Стаи: 2
  • Година на строителство: 1984
  • Тип на имота: Апартамент
  • Операция: За продажба

Допълнителни детайли

  • Строителство: Панел
  • Етаж: 4-ти
  • Брой етажи на сградата: 8
  • Отопление: ТЕЦ
  • Обзавеждане: Необзаведен
  • Състояние на сградата: Завършена
  • Преход: Без преход
  • Град София
  • Област Област София-град
  • Квартал Фондови жилища
  • Държава България

0 Отзив

Sort by:
Leave a Review

    Leave a Review

    Compare listings

    Сравняване
    Olx Недвижими Имоти
    • Olx Недвижими Имоти