Продава се Двустаен апартамент в София, Кръстова вада – 61 кв.м за 2700 €/кв.м

  • 164,700€
  • 2,700€/m²
Област София-град, гр. София, Кръстова вада
Продава се Двустаен апартамент в София, Кръстова вада - 61 кв.м за 2700 €/кв.м - Снимка #4
  • Апартамент
  • Тип на имота
  • 61
  • кв.м
  • 2026
  • Година на строителство
За продажба Агенция
Област София-град, гр. София, Кръстова вада
  • 164,700€
  • 2,700€/m²

Накратко за имота

  • Апартамент
  • Тип на имота
  • 61
  • кв.м
  • 2026
  • Година на строителство

Описание

Хоум Лайт представя на Вашето внимание двустаен апартамент в кв. Кръстова Вада.

Кварталът е известен с модерната си инфраструктура и богата гама от удобства. Намира се в непосредствена близост до Парадайс център, което осигурява лесен достъп до множество магазини, ресторанти и развлекателни заведения.

Микрорайонът предлага удобен транспортен достъп до центъра на града и природата, благодарение на близостта си до Витоша. Локацията е отлична за всеки, който търси баланс между динамично градско ежедневие и спокойна семейна среда.

Този имот е отличен избор както за лично ползване, така и за инвестиционна цел.

Разположен на втори жилищен етаж в новострояща се шестетажна сграда, апартаментът съчетава комфорт и функционалност, а същевременно предоставя изключителна възможност за висококачествено модерно живеене.

Сградата е след АКТ 14, като се очаква АКТ 16 през 2026 г.

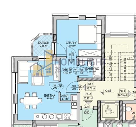
Апартаментът е с площ от 61 кв.м., а разпределението е следното: входно антре, дневна с кухнененски бокс, спалня, баня със санитарен възел, тераса и складово помещение.

Отоплението е на електричество (климатици).

Този апартамент предлага висок стандарт на живот на атрактивна цена в един от най-желаните райони на столицата.

За повече информация относно имота или организиране на огледи, този номер ще Ви е необходим – 6610

Детайли

Обновено на януари 1, 1970 в 12:00 am
  • Цена: 164,700€
  • Квадратура: 61 кв.м
  • Стаи: 2
  • Година на строителство: 2026
  • Тип на имота: Апартамент
  • Операция: За продажба

Допълнителни детайли

  • Строителство: Тухла
  • Етаж: 2-ри
  • Брой етажи на сградата: 6
  • Отопление: Електричество
  • Обзавеждане: Необзаведен
  • Състояние на сградата: Завършена
  • Преход: Без преход
  • Град София
  • Област Област София-град
  • Квартал Кръстова вада
  • Държава България

0 Отзив

Sort by:
Leave a Review

    Leave a Review

    Compare listings

    Сравняване
    Olx Недвижими Имоти
    • Olx Недвижими Имоти