Продава се Двустаен апартамент в София, Люлин 6 – 68 кв.м за 1370 €/кв.м

  • 93,132€
  • 1,370€/m²
Област София-град, гр. София, Люлин 6
  • Апартамент
  • Тип на имота
  • 68
  • кв.м
  • 2026
  • Година на строителство
За продажба Агенция
Област София-град, гр. София, Люлин 6
  • 93,132€
  • 1,370€/m²

Накратко за имота

  • Апартамент
  • Тип на имота
  • 68
  • кв.м
  • 2026
  • Година на строителство

Описание

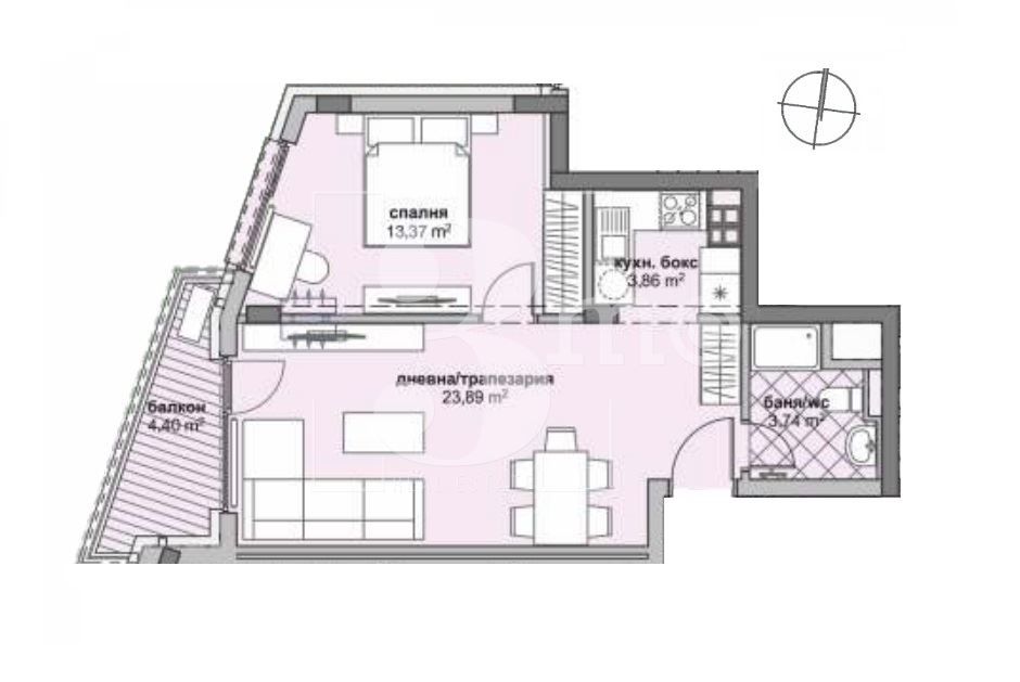
3mo Амалтея има удоволствието да продава двустаен апартамент в модерна жилищна сграда в ж.к. Люлин 6 с планирано разрешение за ползване през 2026-та година. Предложеният имот е с обща площ от 67,98 кв.м. (застроена 58,29 кв.м.) и се състои от: всекидневна (23,89 кв.м.) с кухненски бокс (3,86 кв.м.) с излаз на балкон (4,40 кв.м.), спалня (13,37 кв.м.) и баня с тоалетна (3,74 кв.м.). Към имота има прилежащ склад (2,21 кв.м.) на ниво сутерен. Жилището е разположено на четвърти от общо девет етажа с изложение запад. Апартамента е подходящ както за живеене така и за инвестиция. Продава в степен за завършеност по БДС на цена 93132 евро. Към имота може да се закупи паркомясто или гараж. Инвеститора е с дългогодишен опит в строителството с модерна визия, високо качество и луксозно изпълнение на общите части. В близост до жилището са разположени множество и най-различни търговски, хранителни и денонощни магазини и обекти, детска градина, училища, спирка на градски транспорт с бърз превоз до входа на метростанция “Западен парк” и мега мол. Връзката с централната и други части на столицата се осъществява посредством бул. Петър Дертлиев и Околовръстен път. Агенцията ни предлага безплатна консултация и съдействие на своите клиенти при покупка на имот чрез ипотечен кредит. За повече информация и организиране на огледи, моля свържете се с нас на посочените телефони!

Оферта № 452

Детайли

Обновено на януари 1, 1970 в 12:00 am
  • Цена: 93,132€
  • Квадратура: 68 кв.м
  • Стаи: 2
  • Година на строителство: 2026
  • Тип на имота: Апартамент
  • Операция: За продажба

Допълнителни детайли

  • Строителство: Тухла
  • Етаж: 4-ти
  • Брой етажи на сградата: 9
  • Отопление: Електричество
  • Обзавеждане: Необзаведен
  • Състояние на сградата: Завършена
  • Преход: С преход
  • Град София
  • Област Област София-град
  • Квартал Люлин 6
  • Държава България

0 Отзив

Sort by:
Leave a Review

    Leave a Review

    Compare listings

    Сравняване
    Olx Недвижими Имоти
    • Olx Недвижими Имоти