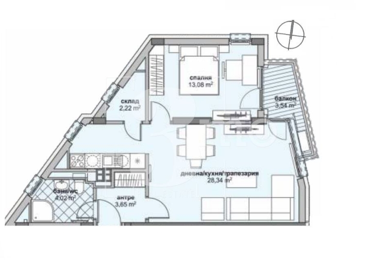
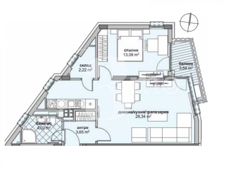
3mo Амалтея има удоволствието да ви предложи двустаен апартамент в нова жилищна сграда в ж.к. Люлин 6 с планирано разрешение за ползване през 2026-та година. Предложеният имот е с обща площ от 81,39 кв.м. (застроена 69,86 кв.м.) и се състои от: входно антре (3,65 кв.м.), всекидневна с кухненски бокс и трапезария (28,34 кв.м.) с излаз на балкон (3,54 кв.м.), спалня (13,08 кв.м.), складово помещение (2,22 кв.м.) и баня с тоалетна (4.02 кв.м.). Жилището е разположено на четвърти от общо девет етажа с изложение изток, запад и север. Апартамента е изключително подходящ за инвестиция с цел отдаване под наем. Продава в степен за завършеност по БДС на цена 111343евро. Към имота може да се закупи паркомясто или гараж. Инвеститора е с дългогодишен опит в строителството с качествено изпълнение, модерна визия и завършване до последния детайл във всеки свой проект. В близост до жилището са разположени множество и най-различни търговски, хранителни и денонощни магазини и обекти, детска градина, училища, един от входовете към западният парк, спирка на градски транспорт с бърз превоз до входа на метростанция “Западен парк” и мега мол. Връзката с централната и други части на столицата се осъществява посредством бул. Петър Дертлиев и Околовръстен път. Агенцията ни предлага безплатна консултация и съдействие на своите клиенти при покупка на имот чрез ипотечен кредит. За повече информация и организиране на огледи, моля свържете се с нас на посочените телефони!
Оферта № 453
Compare listings
Сравняване