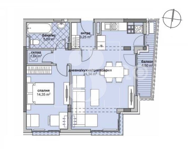
3mo Амалтея има удоволствието да ви предложи слънчев двустаен апартамент в нова жилищна сграда в ж.к. Люлин 6 с планирано разрешение за ползване през 2026-та година. Предложеният имот е с обща площ от 86,63 кв.м. (застроена 73,71 кв.м.) и се състои от: входно антре (3,25 кв.м.), всекидневна с кухненски бокс и трапезария (31,34 кв.м.) с излаз на тераса (4,50 кв.м.), южна спалня (14,35 кв.м.), складово помещение (1,64 кв.м.) и баня с тоалетна (5,59 кв.м.). Жилището е разположено на седми от общо девет етажа с изложение юг и изток. От имота се разкрива чудесна гледка, подходящ е както за живеене така и за инвестиция. Продава в степен за завършеност по БДС на цена 125613 евро. Отделно може да се закупи паркомясто или гараж. Инвеститора е с дългогодишен опит в строителството с модерна визия на сградите, качество и луксозно изпълнение до последния детайл. В близост до жилището са разположени един от входовете към западния парк, множество и най-различни търговски, хранителни и денонощни магазини и обекти, детска градина, училища, един от входовете към западният парк, спирка на градски транспорт с бърз превоз до входа на метростанция “Западен парк” и мега мол. Връзката с централната и други части на столицата се осъществява посредством бул. Петър Дертлиев и Околовръстен път. Агенцията ни предлага безплатна консултация и съдействие на своите клиенти при покупка на имот чрез ипотечен кредит. За повече информация и организиране на огледи, моля свържете се с нас на посочените телефони!
Оферта № 461
Compare listings
Сравняване