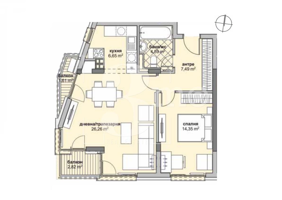
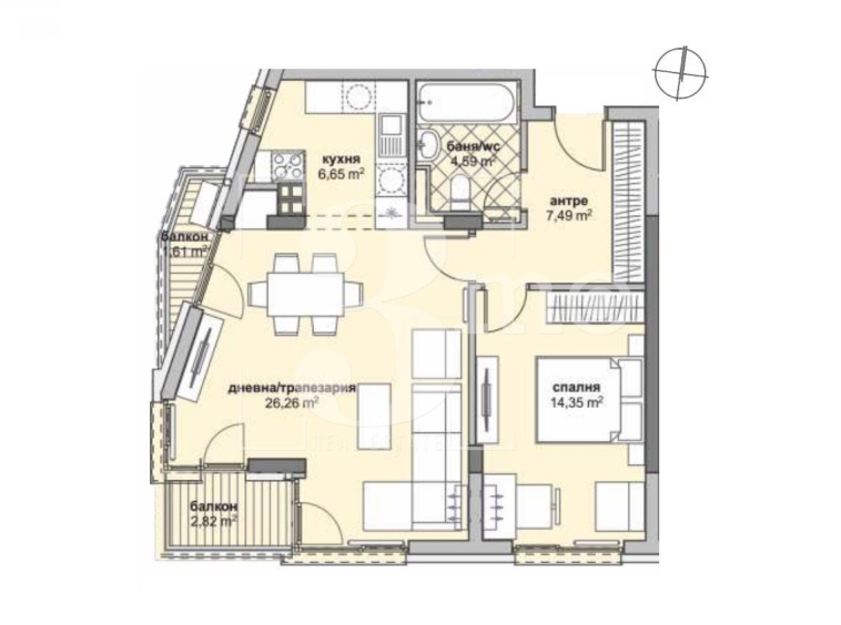
3mo Амалтея има удоволствието да ви предложи двустаен южен апартамент в нова жилищна сграда в ж.к. Люлин 6 с планирано разрешение за ползване през 2026-та година. Предложеният имот е с обща площ от 90,81 кв.м. (застроена 77,19 кв.м.) и се състои от: входно антре (7,49 кв.м.), всекидневна с кухненски бокс и трапезария (32,91 кв.м.) с излаз към два балкона (1,61 кв.м. и 2,82 кв.м.), спалня (14,35 кв.м.) и баня с тоалетна (4,59 кв.м.). Към имота има прилежащ склад (3,06 кв.м.) на ниво сутерен. Жилището е разположено на седми от общо девет етажа с изложение юг и запад. Апартамента се продава в степен за завършеност по БДС на цена 131 674 евро. Отделно може да се закупи паркомясто или гараж. Инвеститора е с дългогодишен опит в строителството с качествено и луксозно изпълнение на своите сгради. В близост до жилището са разположени един от входовете на западния парк, множество и най-различни търговски, хранителни и денонощни магазини и обекти, детска градина, училища, спирка на градски транспорт с бърз превоз до входа на метростанция “Западен парк” и мега мол. Връзката с централната и други части на столицата се осъществява посредством бул. Петър Дертлиев и Околовръстен път. Агенцията ни предлага безплатна консултация и съдействие на своите клиенти при покупка на имот чрез ипотечен кредит. За повече информация и организиране на огледи, моля свържете се с нас на посочените телефони!
Оферта № 462
Compare listings
Сравняване