Продава се Двустаен апартамент в София, Люлин 6 – 97 кв.м за 1495 €/кв.м

  • 144,960€
  • 1,494€/m²
Област София-град, гр. София, Люлин 6
  • Апартамент
  • Тип на имота
  • 97
  • кв.м
  • 2026
  • Година на строителство
За продажба Агенция
Област София-град, гр. София, Люлин 6
  • 144,960€
  • 1,494€/m²

Накратко за имота

  • Апартамент
  • Тип на имота
  • 97
  • кв.м
  • 2026
  • Година на строителство

Описание

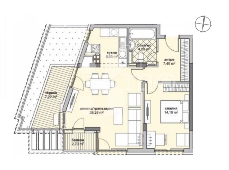
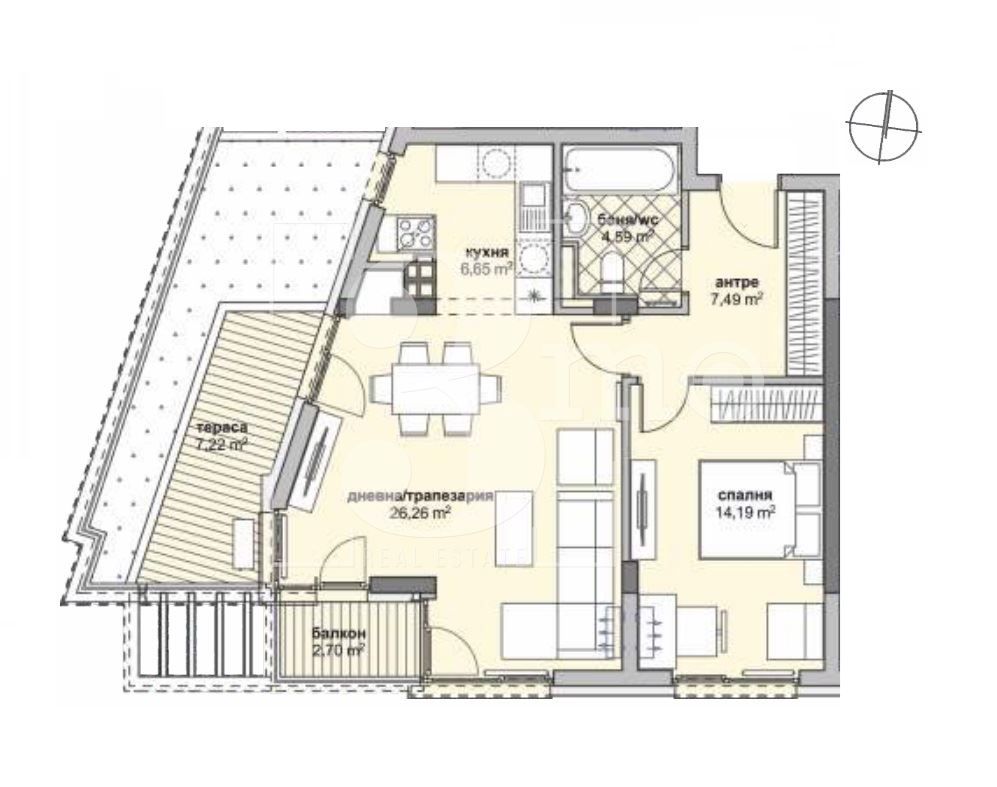
3mo Амалтея има удоволствието да ви предложи двустаен апартамент в нова жилищна сграда в ж.к. Люлин 6 с планирано разрешение за ползване през 2026-та година. Предложеният имот е с обща площ от 96,64 кв.м. (застроена 82,13кв.м.) и се състои от: входно антре (7,49 кв.м.), всекидневна с кухненски бокс и трапезария (32,91 кв.м.) с излаз на балкон (2,70 кв.м.) и към тераса (7,22 кв.м.), спалня (14,19 кв.м.) и баня с тоалетна (4,59 кв.м.). Към имота има прилежащо складово помещение (3,81 кв.м.) на ниво сутерен. Жилището е разположено на пети от общо девет етажа с изложение юг и запад. Апартамента се продава в степен за завършеност по БДС на цена 144960 евро. Към имота може да се закупи паркомясто или гараж. Инвеститора е с дългогодишен опит в строителството с модерна визия и луксозно изпълнение на общите части в своите сгради. В близост до жилището са разположени множество и най-различни търговски, хранителни и денонощни магазини и обекти, детска градина, училища, спирка на градски транспорт с бърз превоз до входа на метростанция “Западен парк”. Връзката с централната и други части на столицата се осъществява посредством бул. Петър Дертлиев и Околовръстен път. Агенцията ни предлага безплатна консултация и съдействие на своите клиенти при покупка на имот чрез ипотечен кредит. За повече информация и организиране на огледи, моля свържете се с нас на посочените телефони!

Оферта № 456

Детайли

Обновено на януари 1, 1970 в 12:00 am
  • Цена: 144,960€
  • Квадратура: 97 кв.м
  • Стаи: 2
  • Година на строителство: 2026
  • Тип на имота: Апартамент
  • Операция: За продажба

Допълнителни детайли

  • Строителство: Тухла
  • Етаж: 5-ти
  • Брой етажи на сградата: 9
  • Отопление: ТЕЦ
  • Обзавеждане: Необзаведен
  • Състояние на сградата: Завършена
  • Преход: Без преход
  • Град София
  • Област Област София-град
  • Квартал Люлин 6
  • Държава България

0 Отзив

Sort by:
Leave a Review

    Leave a Review

    Compare listings

    Сравняване
    Olx Недвижими Имоти
    • Olx Недвижими Имоти