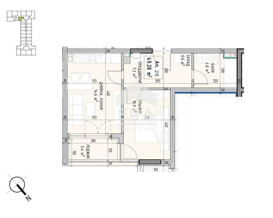
ЕРА Академика предлага двустаен апартамент в нов проект, отличаващ се със стилна визия, луксозно завършени общи части на сградите и качествени материали. Апартаментът е с площ от 58 кв. м., от които застроената площ е 50 кв.м. Раазположен е на трети етаж. Имотът е със следното разпределение: входно антре, дневна с кухненски бокс с излаз на тераса, спалня с излаз на тераса и баня. Многофамилна жилищна сграда „СЕРДИКА“ е разположена в район Студентски, в непосредствена близост до новопостроена и функционираща детска градина, както и на 400 м. от арката на Национална спортна академия. Очаква се сградата да получи Акт 14 до декември 2024 г., Акт 15 – до септември на 2025 г., а самото Разрешение за ползване да бъде получено до 3 месеца след Акт 15.
Compare listings
Сравняване