Продава се Двустаен апартамент в София, Витоша – 59 кв.м за 2877 €/кв.м

  • 169,700€
  • 2,876€/m²
Област София-град, гр. София, Витоша
  • Апартамент
  • Тип на имота
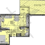
  • 59
  • кв.м
  • 2026
  • Година на строителство
За продажба Агенция
Област София-град, гр. София, Витоша
  • 169,700€
  • 2,876€/m²

Накратко за имота

  • Апартамент
  • Тип на имота
  • 59
  • кв.м
  • 2026
  • Година на строителство

Описание

ОТ СОБСТВЕНИК! БЕЗ КОМИСИОННА!!!

ЮГ-ИЗТОК! Вътрешен апартамент, среден етаж- част от съвременен жилищен проект в квартал Витоша .

Разположен в тиха и зелена зона между бул. Симеоновско шосе и ул. Борис Арсов, проектът предлага едновременно спокойствие и удобен достъп до централните части на града и Околовръстния път. Районът е с новоизградена инфраструктура, осветление и тротоари, което го прави един от най-предпочитаните за живеене и инвестиция.

Локация и комуникации:

На 5 минути пеша от бъдеща метростанция

В близост до автобусни линии: 67, 94, 102, 280, 294

Пешеходен достъп до магазини, заведения и търговски центрове

В непосредствена близост до Френски и Руски лицей

Сграда и удобства:

Рецепция с кафе-сладкарница уютно място за срещи и отдих

Подземни и надземни паркоместа за максимално удобство

Луксозни общи части и фоайета, изпълнени по дизайнерски проект

Архитектура и качество на изпълнение:

Естествена светлина и усещане за простор във всяко жилище

Висококачествени материали и внимание към детайла

Енергийна ефективност и отопление:

Троен стъклопакет за отлична топло- и шумоизолация

Централна система на природен газ с медна разводка във всеки апартамент

Ниски разходи за поддръжка и енергия

Строителен етап:

Пред Акт 15. Очаквано завършване и въвеждане в експлоатация 2026 г. (АКТ 16).

Детайли

Обновено на януари 1, 1970 в 12:00 am
  • Цена: 169,700€
  • Квадратура: 59 кв.м
  • Стаи: 2
  • Година на строителство: 2026
  • Тип на имота: Апартамент
  • Операция: За продажба

Допълнителни детайли

  • Строителство: Тухла
  • Етаж: 8-ми
  • Брой етажи на сградата: 9
  • Отопление: Газ
  • Обзавеждане: Необзаведен
  • Състояние на сградата: В строеж
  • Преход: Без преход
  • Град София
  • Област Област София-град
  • Квартал Витоша
  • Държава България

0 Отзив

Sort by:
Leave a Review

    Leave a Review

    Compare listings

    Сравняване
    Olx Недвижими Имоти
    • Olx Недвижими Имоти