Продава се Двустаен апартамент в Стара Загора, Център – 70 кв.м за 689 €/кв.м

  • 94,261€
  • 689€/m²
Област Стара Загора, гр. Стара Загора, Център
Продава се Двустаен апартамент в Стара Загора, Център - 70 кв.м за 689 €/кв.м - Снимка #4 Продава се Двустаен апартамент в Стара Загора, Център - 70 кв.м за 689 €/кв.м - Снимка #5
  • Апартамент
  • Тип на имота
  • 70
  • кв.м
  • 2028
  • Година на строителство
За продажба Частно лице
Област Стара Загора, гр. Стара Загора, Център
  • 94,261€
  • 689€/m²

Накратко за имота

  • Апартамент
  • Тип на имота
  • 70
  • кв.м
  • 2028
  • Година на строителство

Описание

ТОП ОФЕРТА ДВУСТАЕН В ЕСТЕТИ ПАРК САУТ

Директно от собственик

Продавам двустаен апартамент в един от най-търсените нови комплекси в Стара Загора Естети Парк Саут – ул. Отец Паисий 10 до Лидл

Отлична локация тиха зона, ново строителство, бърз достъп до центъра

Ранен етап на строителство най-добра цена

ПАРАМЕТРИ:

Етаж: 6 (предпочитан без шум, супер гледка)

Изложение: запад

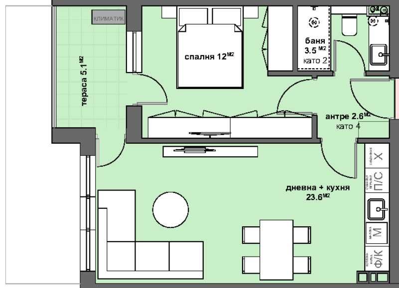
Площ:70.23 кв.м

Функционално разпределение без загуби

Дневна с кухня + отделна спалня + баня и WC

Тераса

Асансьор и модерни общи части

ЦЕНА: 94 500

Подходящ за инвестиция високо търсене на наеми

Перфектен за отдаване или препродажба

Цените ще растат с напредване на строежа

БЕЗ КОМИСИОНА ДИРЕКТНО ОТ СОБСТВЕНИК

Ограничена възможност такива оферти изчезват бързо

Обади се сега: 08********71

Детайли

Обновено на януари 1, 1970 в 12:00 am
  • Цена: 94,261€
  • Квадратура: 70 кв.м
  • Стаи: 2
  • Година на строителство: 2028
  • Тип на имота: Апартамент
  • Операция: За продажба

Допълнителни детайли

  • Строителство: Тухла
  • Етаж: 6-ти
  • Брой етажи на сградата: 9
  • Отопление: Прокарва се
  • Обзавеждане: Необзаведен
  • Състояние на сградата: В строеж
  • Преход: Без преход
  • Град Стара Загора
  • Област Област Стара Загора
  • Квартал Център
  • Държава България

0 Отзив

Sort by:
Leave a Review

    Leave a Review

    Compare listings

    Сравняване
    Olx Недвижими Имоти
    • Olx Недвижими Имоти