Продава се Двустаен апартамент в Стара Загора, Самара 3 – 40 кв.м за 950 €/кв.м

  • 38,000€
  • 950€/m²
Област Стара Загора, гр. Стара Загора, Самара 3
  • Апартамент
  • Тип на имота
  • 40
  • кв.м
  • 1980
  • Година на строителство
За продажба Частно лице
Област Стара Загора, гр. Стара Загора, Самара 3
  • 38,000€
  • 950€/m²

Накратко за имота

  • Апартамент
  • Тип на имота
  • 40
  • кв.м
  • 1980
  • Година на строителство

Описание

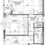
Продавам гарсониера в Стара Загора , кв. Самара ( срещу стария МОЛ)

Детайли

Обновено на януари 1, 1970 в 12:00 am
  • Цена: 38,000€
  • Квадратура: 40 кв.м
  • Стаи: 2
  • Година на строителство: 1980
  • Тип на имота: Апартамент
  • Операция: За продажба

Допълнителни детайли

  • Строителство: Панел
  • Етаж: 12-ти
  • Брой етажи на сградата: 16
  • Отопление: Електричество
  • Обзавеждане: Полуобзаведен
  • Състояние на сградата: Завършена
  • Преход: С преход

Особености

  • Град Стара Загора
  • Област Област Стара Загора
  • Квартал Самара 3
  • Държава България

0 Отзив

Sort by:
Leave a Review

    Leave a Review

    Compare listings

    Сравняване
    Olx Недвижими Имоти
    • Olx Недвижими Имоти