Продава се Двустаен апартамент в Търговище, Център – 73 кв.м за 1013 €/кв.м

  • 73,950€
  • 1,013€/m²
Област Търговище, гр. Търговище, Център
Продава се Двустаен апартамент в Търговище, Център - 73 кв.м за 1013 €/кв.м - Снимка #4 Продава се Двустаен апартамент в Търговище, Център - 73 кв.м за 1013 €/кв.м - Снимка #5 Продава се Двустаен апартамент в Търговище, Център - 73 кв.м за 1013 €/кв.м - Снимка #6 Продава се Двустаен апартамент в Търговище, Център - 73 кв.м за 1013 €/кв.м - Снимка #7 Продава се Двустаен апартамент в Търговище, Център - 73 кв.м за 1013 €/кв.м - Снимка #8
  • Апартамент
  • Тип на имота
  • 73
  • кв.м
  • 2024
  • Година на строителство
За продажба Агенция
Област Търговище, гр. Търговище, Център
  • 73,950€
  • 1,013€/m²

Накратко за имота

  • Апартамент
  • Тип на имота
  • 73
  • кв.м
  • 2024
  • Година на строителство

Описание

Район Широк Център

До сладкарница Златната Рибка

Агенция за недвижими имоти Great Home представя на вашето внимание двустаен тухлен апартамент ново строителство !

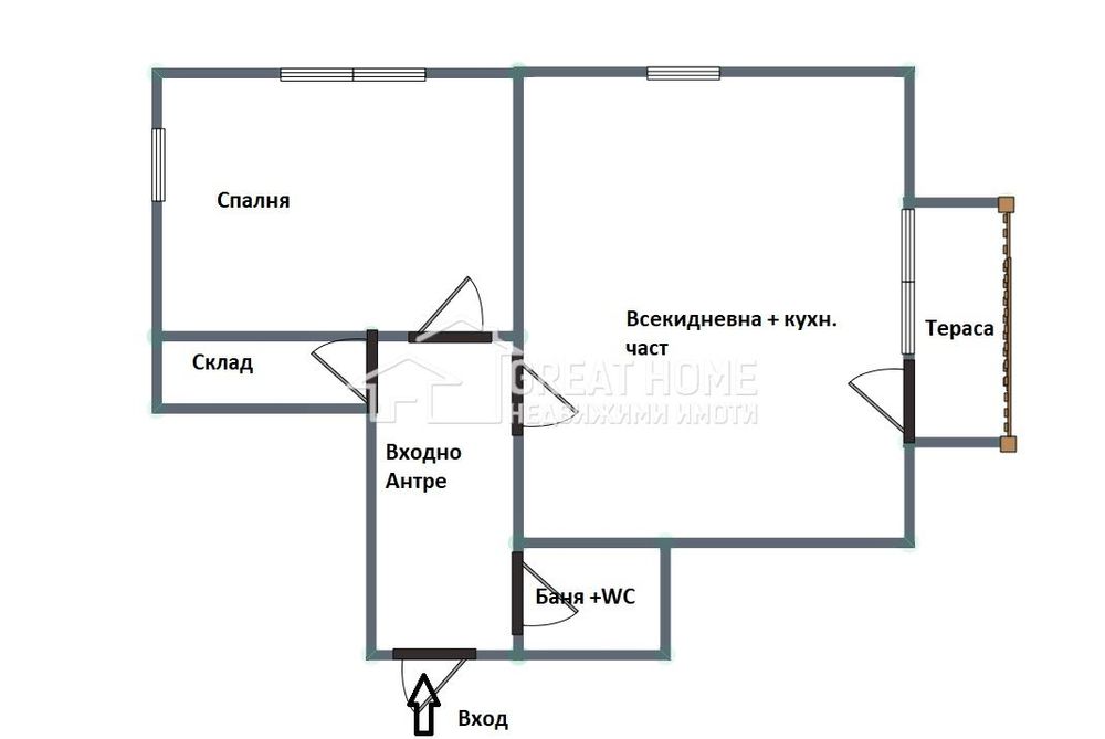
Имотът се състои от :

– входно антре

– хол с трапезария с излаз на тераса

– спалня

– баня +WC

– склад

Квадратура – 73 кв.м.

Изложение / изток / запад / север

5 камерна PVC дограма / немско производство

10 см. изолация / Мapei

Безшумен асансьор

Общи части от полиран гранит

Апартаментът ще бъде издаден по БДС/ шпакловка /замазка/ ключове /контакти / ВиК инсталация до тапа / входна врата .

Имотът ще бъде въведен в ескплоатация в края на 2024год.

Код на оферта № 597

Цена – 145 000 лева

За повече яснота прилагаме схема на разпределение , а за повече информация ,моля позвънете на 08******43/08******99 или в офиса на агенция Great Home !

Oфис : Георги Бенковски 2

Детайли

Обновено на януари 1, 1970 в 12:00 am
  • Цена: 73,950€
  • Квадратура: 73 кв.м
  • Стаи: 2
  • Година на строителство: 2024
  • Тип на имота: Апартамент
  • Операция: За продажба

Допълнителни детайли

  • Строителство: Тухла
  • Етаж: 2-ри
  • Брой етажи на сградата: 5
  • Отопление: Без отопление
  • Обзавеждане: Необзаведен
  • Състояние на сградата: Завършена
  • Преход: Без преход
  • Град Търговище
  • Област Област Търговище
  • Квартал Център
  • Държава България

0 Отзив

Sort by:
Leave a Review

    Leave a Review

    Compare listings

    Сравняване
    Olx Недвижими Имоти
    • Olx Недвижими Имоти