ИМОТИ ААТАР ИМА УДОВОЛСТВИЕТО ДА ВИ ПРЕДЛОЖИ ДВУСТАЕН АПАРТАМЕНТ НОВО СТРОИТЕЛСТВО 100кв. м, В ЕДИН ОТ НАЙ-КОМУНИКАТИВНИТЕ РАЙОНИ НА ГР. ТЪРГОВИЩЕ, КВ. ВАРОША, НА МИНУТИ ОТ ЦЕНТЪРА НА ГРАДА.
В ЗАВЪРШЕН ВИД, БЛОКЪТ ЩЕ БЪДЕ СЪС СЛЕДНИТЕ ХАРАКТЕРИСТИКИ:
Височина на жилищата конструктивна етажна височина – 2.85 м, 2.60 м.
Стени и тавани – гипсова шпакловка
Под – циментова замазка
Зидария- многокамерни керамични тухли на Wienerberger;
Вентилируема окачена Фасада със естествени камъни, топлоизолация 10 см с каменна вата.
Асансьор – електрически с автоматични вътрешни и външни врати; шумоизолиран;
Ел. инсталация– трипроводна, хоризонтална и вертикална разводка с монтирани ел. табло, ключове и контакти по БДС;
Водоснабдяване и канализация – хоризонтална и вертикална разводка на тапа, изпълнена с тръби от полипропилен ; – топлоизолирана;
Отоплителна инсталация – с топлоизточник: ГАЗ
Външна дограма – PVC седем камерен профил с ширина 85 мм; – двоен стъклопакет с дебелина 24 мм; външно стъкло – 4 сезона, вътрешно бяло стъкло.
Климатици – изпълнена разводка за климатична инсталация; – БЕЗ климатици;
Външни врати (на апартаментите) – метална входна врата; височина – 210 см;
Окабеляване в апартаментите:
– интернет : до апартамента с оптичен кабел; до всяка стая в апартамента с FTP кабел;
– кабелна и сателитна телевизия;
Входно предверие и стълбище – дизайнерско изпълнение, изпълнено от естествени камъни ( гранит) и алуминиев парапет.
Външни връзки:
Напълно завършване на всички външни връзки: – Ток – Електрозахранване с ГРТ; – ВиК – ГАЗ
Цена:178000лв
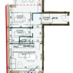
Изложение:Югоизток
ет. 4
Състои се от: Хол с трапезария, спалня, баня с тоалетна,килер, тераса
Намира се в близост до детска градина, училище, Хранителни магазини, заведения за хранене и градския парк.
Агенция за недвижими имоти ААТАР съдейства и посредничи при отпускане на потребителски и ипотечен кредит при най-добри условия за клиента.
Ние сме реномирана компания и ще бъдем с вас не само по време на покупката, но и след това, осигурявайки ви допълнителни услуги по ваше изискване с цел пълноценно и безпроблемно ползване на новозакупения имот. Услугите, които можем да предложим, включват застраховка на движимо и недвижимо имущество, застраховка живот, медицинско и автомобилно застраховане, строителни и ремонтни дейности, обзавеждане, юридически и счетоводни услуги и др.
Тел. за контакт: 08********47
Офис: гр. Търговище бул. “Васил Левски“1 /Бившето Кино/
www. aatarproperties. com
Compare listings
Сравняване