Продава се Двустаен апартамент в Варна, Автогара – 73 кв.м за 1227 €/кв.м

  • 89,500€
  • 1,226€/m²
Област Варна, гр. Варна, Автогара
  • Апартамент
  • Тип на имота
  • 73
  • кв.м
  • 2024
  • Година на строителство
За продажба Агенция
Област Варна, гр. Варна, Автогара
  • 89,500€
  • 1,226€/m²

Накратко за имота

  • Апартамент
  • Тип на имота
  • 73
  • кв.м
  • 2024
  • Година на строителство

Описание

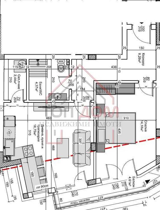
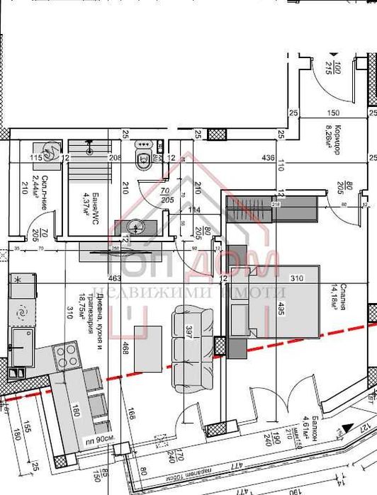
Продава се двустаен апартамент в строеж, разположен в комуникативен район на град Варна, в близост до Автогарата и бул. “Васил Левски”. Апартаментът е с обща площ от 67.98 кв.м и се състои от:

Спалня: 14.18 кв.м

Дневна с кухненски бокс: 18.75 кв.м

Антре

Баня с тоалетна

Тераса

Имотът се намира в новострояща се сграда, с очакван срок на завършване през август 2025 г. Прекрасна възможност за инвестиция или нов дом в модерен и удобен район на града.

Номер на обявата: 67380

За повече информация, свържете се с нас!

Детайли

Обновено на януари 1, 1970 в 12:00 am
  • Цена: 89,500€
  • Квадратура: 73 кв.м
  • Стаи: 2
  • Година на строителство: 2024
  • Тип на имота: Апартамент
  • Операция: За продажба

Допълнителни детайли

  • Строителство: Тухла
  • Етаж: 2-ри
  • Брой етажи на сградата: 5
  • Отопление: Без отопление
  • Обзавеждане: Необзаведен
  • Състояние на сградата: В строеж
  • Преход: Без преход
  • Град Варна
  • Област Област Варна
  • Квартал Автогара
  • Държава България

0 Отзив

Sort by:
Leave a Review

    Leave a Review

    Compare listings

    Сравняване
    Olx Недвижими Имоти
    • Olx Недвижими Имоти