Продава се Двустаен апартамент в Варна, Христо Ботев – 74 кв.м за 1231 €/кв.м

  • 91,093€
  • 1,231€/m²
Област Варна, гр. Варна, Христо Ботев
  • Апартамент
  • Тип на имота
  • 74
  • кв.м
  • 2025
  • Година на строителство
За продажба Агенция
Област Варна, гр. Варна, Христо Ботев
  • 91,093€
  • 1,231€/m²

Накратко за имота

  • Апартамент
  • Тип на имота
  • 74
  • кв.м
  • 2025
  • Година на строителство

Описание

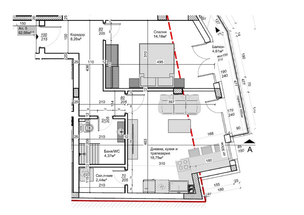
Директно от инвеститор! Без комисионна от Купувача! Предлага двустаен апартамент в новострояща се сграда на улица ”Янаки Жеков” 18, в ж.к. Христо Ботев. Акт 14 края на м. октомври 2024 г.

Застроената площ на жилището е 73,70 кв.м. Разположение – югоизток.Втори жилищен етаж. Апартаментът се състои от антре, дневна с кухненски бокс, спалня, балкон, баня с тоалетна, складово помещение. Жилищната сграда се намира на пешеходно разстояние от Колхозен пазар, Катедралата, центъра, банки, търговски обекти; в близост до детска градина и училище ; спирки на автобусни линии: 22,41,409,148; бърз достъп до Аспарухов мост.

Детайли

Обновено на януари 1, 1970 в 12:00 am
  • Цена: 91,093€
  • Квадратура: 74 кв.м
  • Стаи: 2
  • Година на строителство: 2025
  • Тип на имота: Апартамент
  • Операция: За продажба

Допълнителни детайли

  • Строителство: Тухла
  • Етаж: 3-ти
  • Брой етажи на сградата: 5
  • Отопление: Без отопление
  • Обзавеждане: Необзаведен
  • Състояние на сградата: В строеж
  • Преход: Без преход

Особености

  • Град Варна
  • Област Област Варна
  • Квартал Христо Ботев
  • Държава България

0 Отзив

Sort by:
Leave a Review

    Leave a Review

    Compare listings

    Сравняване
    Olx Недвижими Имоти
    • Olx Недвижими Имоти