Продава се Двустаен апартамент в Варна, Изгрев – 72 кв.м за 1319 €/кв.м

  • 94,900€
  • 1,318€/m²
Област Варна, гр. Варна, Изгрев
Продава се Двустаен апартамент в Варна, Изгрев - 72 кв.м за 1319 €/кв.м - Снимка #4
  • Апартамент
  • Тип на имота
  • 72
  • кв.м
  • 2025
  • Година на строителство
За продажба Агенция
Област Варна, гр. Варна, Изгрев
  • 94,900€
  • 1,318€/m²

Накратко за имота

  • Апартамент
  • Тип на имота
  • 72
  • кв.м
  • 2025
  • Година на строителство

Описание

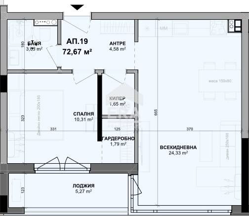
ЕРА Варна Тренд предлага за продажба двустаен апартамент в начален етап на новострояща се сграда, в кв. Изгрев. Имотът е със застроена площ 72,67 кв.м, разположен на трети етаж от общо 4 етажа. Състои се от входно антре (4,58 кв.м), дневна с кухненски бокс (24,33 кв.м), спалня (10,31 кв.м) с гардеробна (1,79 кв.м), обща за двете стаи лоджия/тераса (5,27 кв.м), килер (1,65 кв.м) и баня с тоалетна (3,03 кв.м). Изложението е югозапад.

Жилището се продава необзаведено. Ще бъде завършено до степен БДС, с поставена ПВЦ дограма. Отоплението ще бъде с електричество.

Двустайният апартамент се намира в четириетажна тухлена сграда с асансьор, на начален етап на строителство. Очаква се да бъде въведена в експлоатация до края на 2026 г. Предвидена е разсрочена схема на плащане: 30% на Предварителен договор; 30% на Акт 14; 30% на Акт 15; 10% на Акт 16. Има възможност за допълнително закупуване на паркоместа: подземно – 12 000 евро/ с маза 16 000 евро; външни: 8 000 евро единично; 11 000 евро двойно.

Оферта №0220716

Детайли

Обновено на януари 1, 1970 в 12:00 am
  • Цена: 94,900€
  • Квадратура: 72 кв.м
  • Стаи: 2
  • Година на строителство: 2025
  • Тип на имота: Апартамент
  • Операция: За продажба

Допълнителни детайли

  • Строителство: Тухла
  • Етаж: 3-ти
  • Брой етажи на сградата: 4
  • Отопление: Без отопление
  • Обзавеждане: Необзаведен
  • Състояние на сградата: В строеж
  • Преход: Без преход

Особености

  • Град Варна
  • Област Област Варна
  • Квартал Изгрев
  • Държава България

0 Отзив

Sort by:
Leave a Review

    Leave a Review

    Compare listings

    Сравняване
    Olx Недвижими Имоти
    • Olx Недвижими Имоти