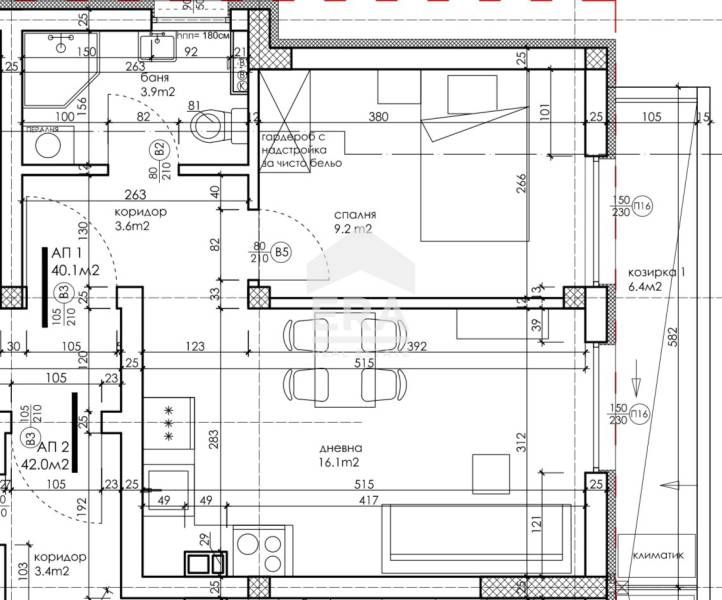
Само в ЕРА Лайф! Нов двустаен апартамент с площ 43,73 кв.м. (с общите части 40,10 кв.м.), разположен на втори етаж (над търговски обект) в малка тухлена кооперация с Акт 16. Имотът е със следното разпределение: входно антре (3,6 кв.м.), дневен тракт с открит кухненски бокс (16,10 кв.м.), спалня (9,2 кв.м.), излаз на тераса (6,40 кв.м.) от двете стаи и комбиниран санитарен възел (3,9 кв.м.). Статут: апартамент
Изложение: изток. Жилището е завършено по БДС стандарт – на шпакловка и замазка с поставена ПВЦ дограма и входна блиндирана врата. Апартаментът се продава без обзавеждане. Приложените снимки са илюстративни. Отоплението е на ток. Паркирането е свободно в района.
Малка тухлена кооперация с контролиран достъп и хубави общи части. Имотът е въведен в експлоатация.
Кайсиева градина – част от един от най-големите жилищни квартали в морския град. Районът разполага с основно училище, детска градина, детска ясла, магазини, търговски обекти и др. Код: 0708191
ЕРА е лицензиран КРЕДИТЕН ПОСРЕДНИК и предлага БЕЗПЛАТНА консултация на своите клиенти!
Всеки имот предлаган от ЕРА е проверен, посетен на място и заснет от наш консултант.
Оферта №0708191
Compare listings
Сравняване