Продава се Двустаен апартамент в Варна, Кайсиева градина – 48 кв.м за 1438 €/кв.м

  • 69,000€
  • 1,438€/m²
Област Варна, гр. Варна, Кайсиева градина
  • Апартамент
  • Тип на имота
  • 48
  • кв.м
  • 2026
  • Година на строителство
За продажба Агенция
Област Варна, гр. Варна, Кайсиева градина
  • 69,000€
  • 1,438€/m²

Накратко за имота

  • Апартамент
  • Тип на имота
  • 48
  • кв.м
  • 2026
  • Година на строителство

Описание

Доказан строител! Възможност за покупка на гараж! Свободни и други двустайни и тристайни апартаменти в сградата!

Най- актуалните Имоти са samhome.bg Реф. Номер: 32299

Отлична локация в непосредствена близост до: Бул. Трети Март и ОУ Стоян Михайловски.

Автобусна спирка: на 220м.

Международно летище: на 5км.

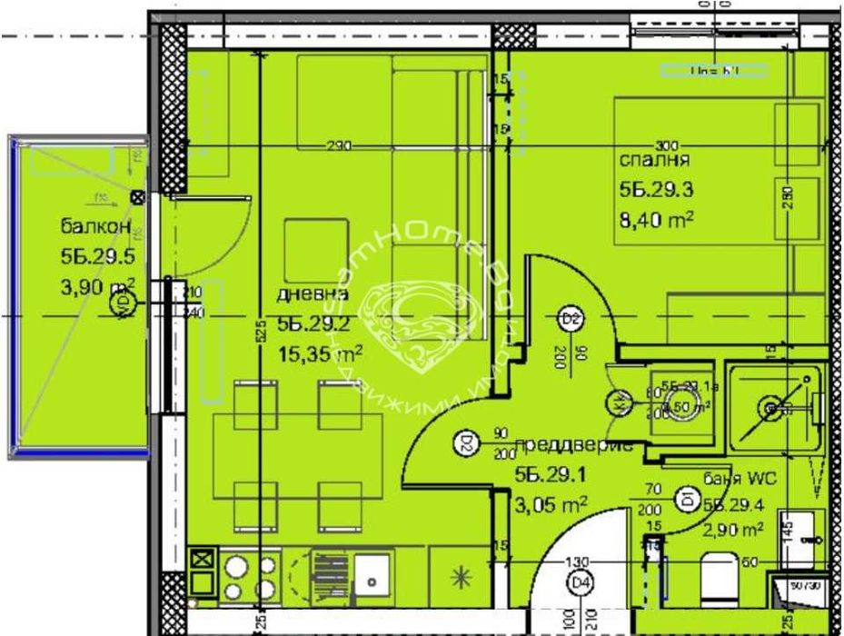
Описание на имота: Апартамента се състои от хол с кухенски бокс с излаз на тераса, спалня, баня с тоалетна, перално помещение/килер и входно антре.

Чиста Жилищна Площ: 41.45кв.м.

Състояние: Обекта е в строеж.

Сграда: Тухлено строителство.

Предимства: Добра локация.

Недостатъци: Няма.

Моля цитирайте реф. номер когато се обадите.

Ние ще Ви обърнем внимание и ще вникнем в детайлите на Вашето търсене заповядайте на среща с брокер в Нашият уютен офис. Комплимент за всеки закупен имот Нашите клиенти получават застраховка имущество за една година!

САМ ХОУМ е агенция създадена от брокери с над 15 годишен опит в сферата на недвижимите имоти, нашата цел е да Ви предоставим качествено обслужване, на което ние бихме се радвали, ако сме Ваши клиенти!

Детайли

Обновено на януари 1, 1970 в 12:00 am
  • Цена: 69,000€
  • Квадратура: 48 кв.м
  • Стаи: 2
  • Година на строителство: 2026
  • Тип на имота: Апартамент
  • Операция: За продажба

Допълнителни детайли

  • Строителство: Тухла
  • Етаж: 7-ми
  • Брой етажи на сградата: 7
  • Отопление: Електричество
  • Обзавеждане: Необзаведен
  • Състояние на сградата: В строеж
  • Преход: Без преход

Особености

  • Град Варна
  • Област Област Варна
  • Квартал Кайсиева градина
  • Държава България

0 Отзив

Sort by:
Leave a Review

    Leave a Review

    Compare listings

    Сравняване
    Olx Недвижими Имоти
    • Olx Недвижими Имоти