Продава се Двустаен апартамент в Варна, Кайсиева градина – 71 кв.м за 697 €/кв.м

  • 96,755€
  • 697€/m²
Област Варна, гр. Варна, Кайсиева градина
  • Апартамент
  • Тип на имота
  • 71
  • кв.м
  • 2028
  • Година на строителство
За продажба Агенция
Област Варна, гр. Варна, Кайсиева градина
  • 96,755€
  • 697€/m²

Накратко за имота

  • Апартамент
  • Тип на имота
  • 71
  • кв.м
  • 2028
  • Година на строителство

Описание

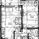
Агенция за недвижими имоти HEGEMON ESTATE Ви предлага просторен двустаен апартамент в Кайсиева градина. Жилището ще се намира в сграда, която ще бъде изградена от доказан строител с много завършени сгради, с найкачествени материали, според всички изисквания на Европейския съюз. Апартамента ще бъде на ет. 4/9 с асансор. Разпределение: входно предверие, всекидневна с кухненска част- 25,42 кв.м., спалня- 13,73 кв.м., тераса с излаз и от двете стаи, баня с тоалетна- 5,35 кв.м. Разсрочено плащане. Има възможност за закупуване на паркомясто. Отлична локация.

Код на офертата: 15023

Агенция HEGEMON ESTATE съдейства с професионална консултация, подготовка на нужните документи за закупуване на желаният от вас дом, както и съдействие за отпускане на банков кредит при най-добри условия. За повече информация, заповядайте в нашият офис, който се намира на Бул .Владислав Варненчик 109, или се обадете на посоченият телефон.

Детайли

Обновено на януари 1, 1970 в 12:00 am
  • Цена: 96,755€
  • Квадратура: 71 кв.м
  • Стаи: 2
  • Година на строителство: 2028
  • Тип на имота: Апартамент
  • Операция: За продажба

Допълнителни детайли

  • Строителство: Тухла
  • Етаж: 4-ти
  • Брой етажи на сградата: 9
  • Отопление: Електричество
  • Обзавеждане: Необзаведен
  • Състояние на сградата: Завършена
  • Преход: Без преход
  • Град Варна
  • Област Област Варна
  • Квартал Кайсиева градина
  • Държава България

0 Отзив

Sort by:
Leave a Review

    Leave a Review

    Compare listings

    Сравняване
    Olx Недвижими Имоти
    • Olx Недвижими Имоти