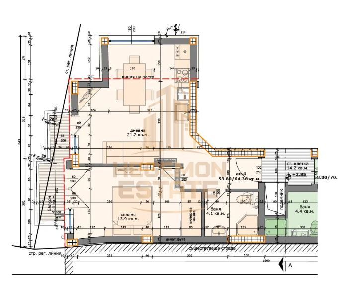
Агенция за недвижими имоти HEGEMON ESTATE Ви предлага ЕКСКЛУЗИВНО двустаен апартамент в м-т Сотира, кв. Левски. Жилището се намира в малка бутикова новострояща се сграда на ет. 2/4. Разпределение: коридор, всекидневна с кухненска част- 21 кв.м. и излаз на просторна тераса, просторна спалня- 14 кв.м. с излаз на същата тераса, комбиниран санитарен възел. Изложение запад. Продава се по БДС. Сградата се изгражда от доказан строител, с най-качествени материали, според всички изисквания на Европейския съюз. Отлична локация- в близост до Техническия Университет, МБАЛ Света Марина, Лидъл.
Може да разчитате на екипа на HEGEMON ESTATE за получаването на професионални консултации, както и проверка и изготвяне на всички необходими документи за закупуването на мечтаният от вас имот. При необходимост съдействаме на нашите клиенти и за отпускане на банков кредит при най- добри условия!
Код на офертата: 12979.
Compare listings
Сравняване