НОМЕР НА ОБЯВАТА: 1002
ПАРКОМЯСТО В ЦЕНАТА!!
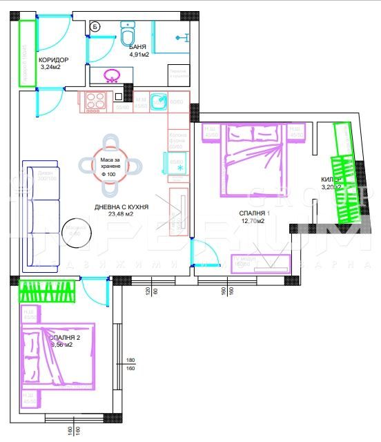
Империум Груп недвижими имоти представя на вашето внимание Голям ДВУстаен апартамент за продажба, с проект за преустройството му в ТРИстаен апартамент.
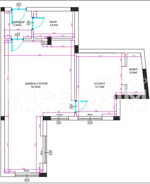
Разпределение: коридор, просторна всекидневна 34 кв.м., спалня 13 кв.м. с дрешник 3 кв.м. и баня с тоалетна 5 кв.м.
Етаж: 1/5
Изложение: ЮГ
Площ: 83 кв.м.
Етап на строителство: Пред А15. Издава се по БДС
*ПО ЖЕЛАНИЕ: Възможно е преустройството на апартамента в ТРИстаен (за по лесно ориентиране, сме прикачили скица на проекта)
За повече информация и огледи относно това или други атрактивни и необявени предложения, потърсете но на посочените телефони: +35***********10 / +35***********00
Compare listings
Сравняване