Продава се Двустаен апартамент в Варна, Младост 1 – 70 кв.м за 1479 €/кв.м

  • 103,500€
  • 1,479€/m²
Област Варна, гр. Варна, Младост 1
Продава се Двустаен апартамент в Варна, Младост 1 - 70 кв.м за 1479 €/кв.м - Снимка #4 Продава се Двустаен апартамент в Варна, Младост 1 - 70 кв.м за 1479 €/кв.м - Снимка #5 Продава се Двустаен апартамент в Варна, Младост 1 - 70 кв.м за 1479 €/кв.м - Снимка #6
  • Апартамент
  • Тип на имота
  • 70
  • кв.м
  • 2028
  • Година на строителство
За продажба Агенция
Област Варна, гр. Варна, Младост 1
  • 103,500€
  • 1,479€/m²

Накратко за имота

  • Апартамент
  • Тип на имота
  • 70
  • кв.м
  • 2028
  • Година на строителство

Описание

International Real Estates (IRE) представя:

БЕЗ КОМИСИОН ОТ КУПУВАЧА!

Инвестиционен проект в динамично развиващ се район – модерен силует с функционално сърце във Варна, кв. Младост 1.

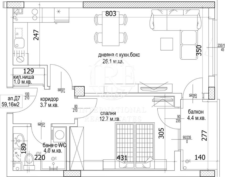
Разпределение:

Двустаен апартамент, включващ дневна с кухненски бокс, спалня, баня с тоалетна, килер, коридор и балкон.

Характеристики и предимства:

Площ: 70 кв.м (чиста площ 59 кв.м)

Етаж и изложение: 2-ри етаж (от общо 9) с удобно източно изложение

Степен на завършеност: вътрешни стени с гипсова мазилка, циментова замазка на пода, блиндирана входна врата, висококачествена PVC дограма (5/6 камерна)

Отлична функционалност и светлина

Сграда:

Архитектура: Нов мащабен проект с подчертана градска визия, модерна архитектура и естетично балансирана фасада

Локация: В район с удобна инфраструктура и близост до зелени площи

Общи части: подови настилки от гранитогрес/гранит, стени с декоративна мазилка, асансьори ORONA

Паркиране: Подземни гаражи и външни паркоместа (цена при запитване)

Срок на завършване:

Очаквано Разрешение за ползване (Акт 16) до 3 месеца след Акт 15 (01.10.2028 г.)

Гъвкави схеми на плащане:

Предлагат се няколко варианта, изцяло съобразени с инвестиционния план на купувача.

ВАЖНО! Снимките в обявата са от друга вече завършена сграда на същия строител и са поставени с цел да се придобие по-точна представа за качеството и стила на изпълнение. Сградата е на етап кота 0.

За повече информация и организиране на оглед, моля свържете се с нас на посочения телефон и цитирайте код на обявата: 398

International Real Estates (IRE) предлага пълно съдействие при покупка, включително безплатна консултация и подкрепа при банково кредитиране – избор на най-добри условия и съдействие до финализиране на сделката.

Детайли

Обновено на януари 1, 1970 в 12:00 am
  • Цена: 103,500€
  • Квадратура: 70 кв.м
  • Стаи: 2
  • Година на строителство: 2028
  • Тип на имота: Апартамент
  • Операция: За продажба

Допълнителни детайли

  • Строителство: Тухла
  • Етаж: 2-ри
  • Брой етажи на сградата: 9
  • Отопление: Електричество
  • Обзавеждане: Необзаведен
  • Състояние на сградата: Завършена
  • Преход: Без преход
  • Град Варна
  • Област Област Варна
  • Квартал Младост 1
  • Държава България

0 Отзив

Sort by:
Leave a Review

    Leave a Review

    Compare listings

    Сравняване
    Olx Недвижими Имоти
    • Olx Недвижими Имоти