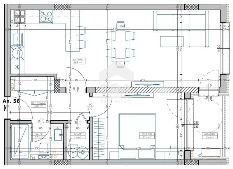
ЕРА Лайф обявява за продажба тристаен апартамент с площ 64,77 м2 (застроена площ 76,10) м2, разположен на 8 етаж от 11 в новострояща се жилищна сграда.
Вид на завършеност на жилището: БДС стандарт, стени – мазилки, шпакловка и грунд, тавани – мазилка, шпакловка и грунд, входна врата с метален обков, пет камерна PVC дограма, марка “ВИВАПЛАСТ”, ел. инсталации – контакти и фасунги, ВиК на тапи.
Отопленето ще бъде с електричество. Схемата на плащане е: При предварителен договор: 30%,при достигане на кота „15.35“: 20%, при издаване на Акт 14: 20%, при поставяне на дограма: 10%, при издаване на Акт 15: 10%, при издаване на Акт 16: 10%.
Паркирането е свободно в района, като има възможност за закупуване на подземен гараж или открито паркомясто.
Обявеният за продажба апартамент е в сграда, която ще бъде въведена в експлоатация декември 2027г. В строителството на сградата са заложени качествени материали.
Район с отлична инфраструктура – в близост до главни пътни артерии, автобусни спирки на градския транспорт, магазини, голям търговски център, професионални гимназии и училища, детски градини и ясли. Имотът е отличен както за живеене, така и за инвестиция. Код: 0708759
Оферта №0708761
Compare listings
Сравняване