Продава се Двустаен апартамент в Варна, Погреби – 75 кв.м за 1534 €/кв.м

  • 115,000€
  • 1,533€/m²
Област Варна, гр. Варна, Погреби
  • Апартамент
  • Тип на имота
  • 75
  • кв.м
  • 2025
  • Година на строителство
За продажба Агенция
Област Варна, гр. Варна, Погреби
  • 115,000€
  • 1,533€/m²

Накратко за имота

  • Апартамент
  • Тип на имота
  • 75
  • кв.м
  • 2025
  • Година на строителство

Описание

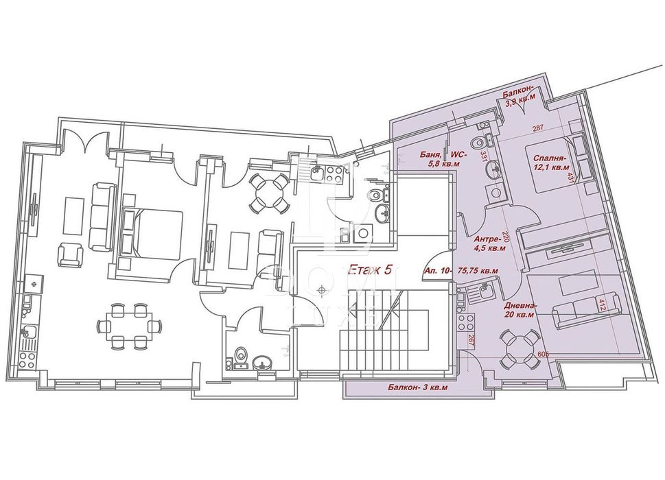
Агенция DOMI LUXE ви предлага ДВУСТАЕН апартамент в НОВА сграда Пред АКТ 15 в кв. Погреби, гр. Варна. Жилището се състои от входно антре, дневна с кухненска част с излаз на проторна тераса, спалня с излаз на собстерна тераса, санитарен възел.

Има възможност за закупуване на подземно или надзмо паркомясто.

Локация: кв. Погреби един от най- спокойните райони, но същевременно е на минимално разстояние от центъра на гр. Варна. В непосредствена близост до големи хранителни магазини, детски градини, училища.

Може да разчитате на нашият екип от професионалисти за консултации, подготовка на нужните документи за закупуване на желаният от вас дом, както и съдействие за отпускане на банков кредит при най-добри условия.

Код на офертата: 77

Детайли

Обновено на януари 1, 1970 в 12:00 am
  • Цена: 115,000€
  • Квадратура: 75 кв.м
  • Стаи: 2
  • Година на строителство: 2025
  • Тип на имота: Апартамент
  • Операция: За продажба

Допълнителни детайли

  • Строителство: Тухла
  • Етаж: 5-ти
  • Брой етажи на сградата: 5
  • Отопление: Електричество
  • Обзавеждане: Необзаведен
  • Състояние на сградата: Завършена
  • Преход: Без преход
  • Град Варна
  • Област Област Варна
  • Квартал Погреби
  • Държава България

0 Отзив

Sort by:
Leave a Review

    Leave a Review

    Compare listings

    Сравняване
    Olx Недвижими Имоти
    • Olx Недвижими Имоти