Продава се Двустаен апартамент в Варна, Виница – 43 кв.м за 1442 €/кв.м

  • 62,000€
  • 1,442€/m²
Област Варна, гр. Варна, Виница
Продава се Двустаен апартамент в Варна, Виница - 43 кв.м за 1442 €/кв.м - Снимка #4 Продава се Двустаен апартамент в Варна, Виница - 43 кв.м за 1442 €/кв.м - Снимка #5 Продава се Двустаен апартамент в Варна, Виница - 43 кв.м за 1442 €/кв.м - Снимка #6
  • Апартамент
  • Тип на имота
  • 43
  • кв.м
  • 2026
  • Година на строителство
За продажба Агенция
Област Варна, гр. Варна, Виница
  • 62,000€
  • 1,442€/m²

Накратко за имота

  • Апартамент
  • Тип на имота
  • 43
  • кв.м
  • 2026
  • Година на строителство

Описание

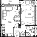
Предлагаме Ви двустаен имот за продажба, разположен в новострояща се сграда в кв. Виница. 

Жилището е със статут на офис, разположено на партерен етаж, с чиста площ 40,66 кв.м., разпределени в:

* дневен тракт с кухненска част /17,45 кв.м./

* просторна спалня /13,60 кв.м./ 

* общ санитарен възел /2,98 кв.м./ 

От двете стаи има излаз към дворното място. 

Към имота има 8,03 кв.м. идеални части от общите части на сградата и от праото на строеж, както и идеални части от дворното място.

Към момента сградата е с разрешение за строеж и открита строителна площадка, като срока за завършване на сградата е декември 2026г. 

Има възможност за избор на други дву или тристайни жилища, както и паркоместа на цена 6000 евро. 

Жилището ще бъде издадено по БДС, с възможност срещу доплащане за завършване “до ключ”.

„Forest Home“ е разположена в близост до красива гора, което предоставя не само спокойствие, но и чудесни възможности за релаксация сред природата. В сградата ще намерите офис площи, кабинети, както и двустайни и тристайни жилища.

Жилищата са просторни, светли и модерно проектирани, с големи прозорци, които осигуряват изобилие от естествена светлина и предлагат прекрасни гледки към гората и околността. Част от апартаментите разполагат с нескриваема морска панорама, което ги прави още по-привлекателни за тези, които искат да се насладят на спокойствието и красотата на Варненския залив.

Всеки имот ще разполага с открити паркоместа във вътрешния двор, което осигурява удобно и лесно паркиране за живущите в сградата.

Сградата е разположена в тих и зелен район, който е подходящ за целогодишно живеене, като предлага спокойствие и чист въздух. В същото време, тя е в близост до основни транспортни връзки, магазини, училища и други удобства, които ще направят ежедневието ви удобно и лесно.

Проектът ще бъде изграден с висококачествени материали, които гарантират дълготрайност и енергийна ефективност, осигурявайки комфорт през всички сезони.

Този проект съчетава перфектно работната среда с комфортните жилищни пространства, в тиха и природосъобразна среда, с лесен достъп до всички удобства на града.

Детайли

Обновено на януари 1, 1970 в 12:00 am
  • Цена: 62,000€
  • Квадратура: 43 кв.м
  • Стаи: 2
  • Година на строителство: 2026
  • Тип на имота: Апартамент
  • Операция: За продажба

Допълнителни детайли

  • Строителство: Тухла
  • Етаж: Партер
  • Брой етажи на сградата: 5
  • Отопление: Електричество
  • Обзавеждане: Необзаведен
  • Състояние на сградата: Завършена
  • Преход: С преход
  • Град Варна
  • Област Област Варна
  • Квартал Виница
  • Държава България

0 Отзив

Sort by:
Leave a Review

    Leave a Review

    Compare listings

    Сравняване
    Olx Недвижими Имоти
    • Olx Недвижими Имоти