Двустаен апартамент в нов комплекс Fusion в кв. Владиславово, гр. Варна
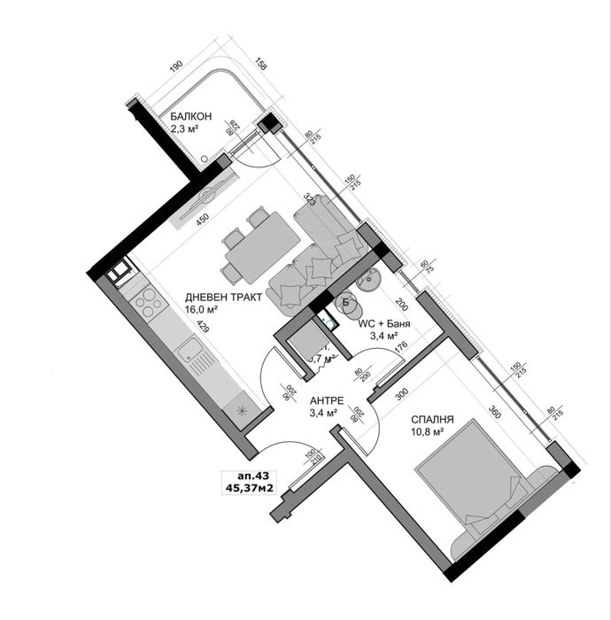
Предлагам за продажба двустаен апартамент с площ от 52 кв.м, разположен на 8-ми етаж от общо 8 в новопостроената втора част на модерен жилищен комплекс Fusion в квартал Владиславово, гр. Варна.
Жилището се намира в затворен комплекс с контролиран достъп, съвременна визия и добре поддържани общи части. Сградата се отличава с високо качество на строителството, асансьор, нови инсталации и просторна панорама от горните етажи.
Апартаментът е с функционално разпределение и подходящ както за живеене, така и за инвестиция.
Площ: 52 кв.м
Етаж: 8 от 8
Тип: Двустаен апартамент
Местоположение: гр. Варна, кв. Владиславово, комплекс Fusion 2 (втора част)
Сграда: ново строителство, затворен тип комплекс
Комплексът Fusion 2 предлага комфортна и безопасна среда, с обособени зони за отдих, зелени площи и паркоместа за живущите. В близост се намират магазини, училище, детска градина, спирки на градски транспорт и удобен достъп до бул. „Цар Освободител“.
Compare listings
Сравняване