Компания `ЕКС` представя на Вашето внимание двустаен апартамент в един от най-предпочитаните райони на Варна- Владислав Варненчик.
МЕСТОПОЛОЖЕНИЕ: В близост до Кметство Владислав Варненчик, магазин Кауфланд и Джъмбо, с изглед към Варненкото езеро и Галата, спирки на градски транспорт, детска градина, училище и автомагистрала Хемус.
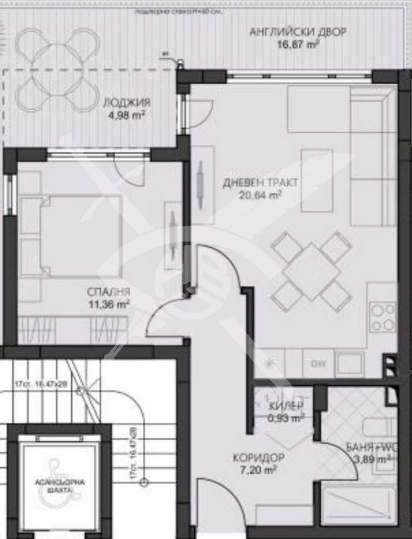
СТРОИТЕЛСТВО: Апартаментът е ситуиран на 1-ви етаж в сграда ново строителство с акт 14.
РАЗПРЕДЕЛЕНИЕ: Жилището разполага с площ от 63 кв.м., разпределена във входно антре, дневна с трапезария и кухненски бокс, спалня, килер, баня с тоалетна , лоджия и двор- 16кв.м.
СЪСТОЯНИЕ: На шпакловка и замаска.
ОСОБЕНОСТИ : КЪМ АПАРТАМЕНТА МОЖЕ ДА СЕ ЗАКУПЯТ И ПАРКОМЕСТА В ПОДЗЕМЕН ГАРАЖ.
КЪМ СГРАДАТА ИМ И ОТКРИТИ ПАРКОМЕСТА !
Заповядайте да Ви го покажем. Използвайки нашите услуги Вие ще превърнете закупуването на новия си дом в едно приятно изживяване, ще получите персонален консултант, съдействие при кандидатстване за кредит от всички банки в България, интериорни дизайнери и екип, който да се погрижи за нужните документи по Вашата сделка. На Ваше разположение сме всеки ден, от понеделник до неделя от 09:00 до 20:00ч. Възползвайте се от безплатна консултация в наш офис, където ще ви спестим време и ще ви запознаем с всички актуални имоти в България, отговарящи на Вашето търсене. Свържете се с нас на 08******90 /на цената на един градски разговор/ или на 08******11 и цитирайте кода към имота: 427-15273.
Compare listings
Сравняване