ЕКСКЛУЗИВНО ОТ ИМОТИКС И ИВЕДА ИМОТИ!
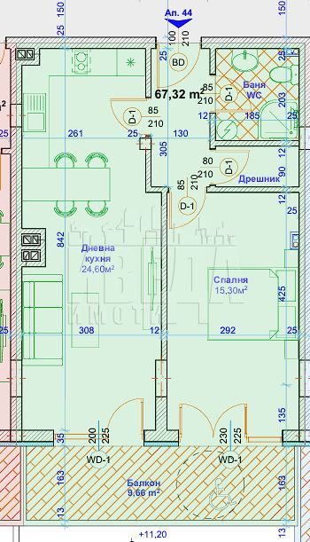
Предлагаме ви двустаен апартамент №44 в новия жилищен комплекс „Възраждане Гардънс“, с площ 82,07 кв.м, разположен на последния 6-ти етаж.
Жилището включва просторна дневна с кухня (24,60 кв.м), голяма спалня (15,30 кв.м), баня с тоалетна, удобен дрешник и широка тераса (9,66 кв.м) с изцяло южно изложение и излаз от двете основни помещения.
Апартаментът предлага максимум светлина, уют и функционално разпределение, подходящо както за живеене, така и за инвестиция.
Разположен в сърцето на кв. Възраждане 1, в близост до парк, училища, магазини, супермаркети и спирки на градски транспорт.
Строителството предстои, а проектът се изпълнява от доказан строител, с гарантирано завършване чрез финансиране от Първа Инвестиционна Банка – гаранция за сигурност.
Информация за сградата:
• 8 нива – подземен етаж, партер с гаражи и паркоместа, и 6 жилищни етажа
• 66 обекта – 54 апартамента и 12 ателиета
• 2 модерни и безшумни асансьора
• Съвременна визия с естествени фасадни материали
• Жилищата се издават по БДС, с опция за завършване „до ключ“
• Луксозни общи части с висококачествени материали
За повече информация и огледи – обадете се и цитирайте референтен номер 22114
Предлагаме и други апартаменти с южно изложение и тераси!
Compare listings
Сравняване