Агенция Хоум Плейс Ви предлага за продажба двустаен апартамент пред АКТ 15 в района на Възраждане 2.
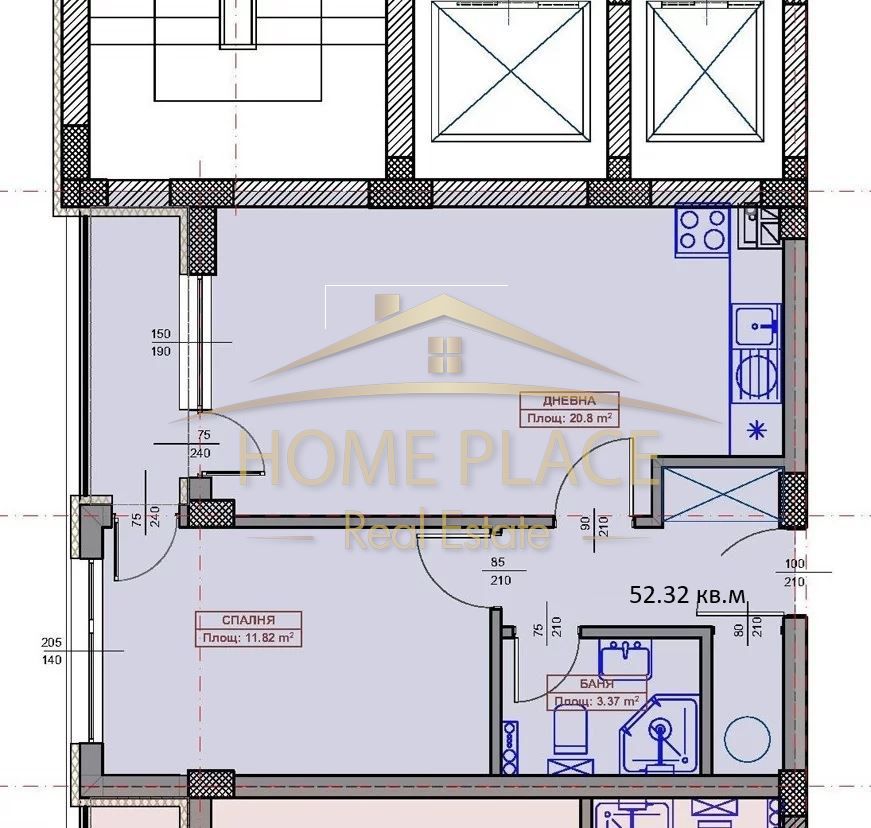
-Обща площ 61.87
-Чиста площ 52.32
-Етаж 8 с асансьор
-Изложение – изток
Разпределение: Дневна с кухненски бокс, спалня, баня с тоалетна, перално, коридор и тераса.
Предлагаме и още два двустайни и два тристайни апартамента в сградата.
За повече информация се свържете с нас на посочения телефон и цитирайте код:
КОД НА ОБЯВА: 29824
HOME PLACE – Ние работим за Вас!
Compare listings
Сравняване