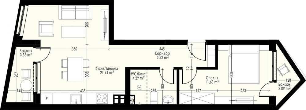
Продава се просторен двустаен апартамент в строеж със следното разпределение : коридор ,дневна с кухня ,тераса тип лоджия ,голяма баня с тоалет ,спалня ,балкон , маза .
Среден етаж ,функционално разпределение на жилищната площ .
Сградата се намира в близост до автобусна спирка на градският транспорт ,големи хипермаркети ,парк .
Апартаментът се предлага завършен по БДС ,по желание на клиента може да се завърши до ключ.
При избор на имот винаги може да разчитате на безплатна консултация от специалистите от РОНЕВА ООД.
Предлагаме също така и съдействие за отпускане на банков кредит, помощ при сключване на сделки и подготвяне на нужната документация!
Compare listings
Сравняване