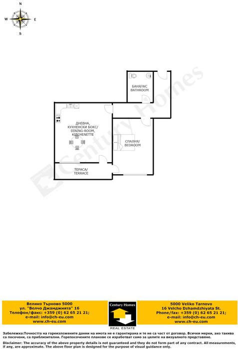
Представеният апартамент е разположен на 4-ти етаж от новопостроена жилищна сграда, в близост до бул. “България” във Велико Търново. Апартаментът е с жилищна площ от 70 кв.м., включвайки просторна дневна с кухненски бокс, спалня, тераса и баня с тоалетна. Жилището е в добро състояние и разполага с подова настилка теракот и ламинат, PVC дограма, PVC врати, външна топлоизолация. Апартаментът е с изцяло южно изложение. Имотът се продава напълно обзаведен и е готов за нанасяне.
Реф. номер:104970
Compare listings
Сравняване