Продава се Двустаен апартамент в Велико Търново, Картала – 69 кв.м за 1448 €/кв.м

  • 99,900€
  • 1,448€/m²
Област Велико Търново, гр. Велико Търново, Картала
Продава се Двустаен апартамент в Велико Търново, Картала - 69 кв.м за 1448 €/кв.м - Снимка #4
  • Апартамент
  • Тип на имота
  • 69
  • кв.м
  • 2005
  • Година на строителство
За продажба Агенция
Област Велико Търново, гр. Велико Търново, Картала
  • 99,900€
  • 1,448€/m²

Накратко за имота

  • Апартамент
  • Тип на имота
  • 69
  • кв.м
  • 2005
  • Година на строителство

Описание

БЕЗ КОМИСИОННА ОТ КУПУВАЧА!!!

Монс Пропъртис има удоволствието да ви представи за продажба двустаен апартамент, в новостроящ се затворен жилищен комплекс в кв. “Картала”, гр. Велико Търново.

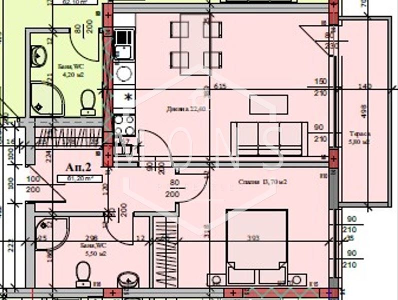
Обща площ на имота 69 кв.м. , като ЗП е 59 кв.м.

Ситуиран на пети жилищен етаж от шестетажна, новострояща се тухлена сграда с елегантна визия и висок клас материали, вложени в строителството.

Разпределението е както следва:Антре, всекидневна с кухненски бокс, спалня, баня с тоалетна и тераса.

СГРАДА ИЗТОК: Етап – АКТ 14

Очакван Акт 15-Септември месец, Очакван Акт 16-Май месец 2026год.

Опция за закупуване на подземен гараж или паркомясто с гъвкави схеми на плащане.

Естетика и комфорт – в две бутикови сгради ИЗТОК и ЗАПАД скътани в периферията на престижния кв. “Картала”, гр. Велико Търново.В близост до парк и новострояща се детска градина.

-Контролиран достъп до комплекса чрез пръстов отпечатък или чип. Испански гранитогрес, естествен камък, ПВЦ дограма антрацит с троен стъклопакет, гръцки тухли KEBE, външна изолация BAUMIT, EPS стиропор, шпакловка и мазилка.

Към всеки апартамент е предвидена тераса със стъклен парапет с подвижен механизъм, който позволява повдигане и спускане чрез дистанционно управление. Удобство, което съчетава модерен дизайн и практичност, безкомпромисно строителство с усет и към най- малкия детайл.

Предлага се функционално разпределен двустаен апартамент разположен и на 6ти етаж в Сграда „Изток“.

Кв. Картала е разположен в една от най-високите и панорамни части на Велико Търново, с красиви гледки към Царевец, Стара планина и река Янтра. Районът е предпочитан заради спокойната атмосфера, близостта до борови гори и добрата инфраструктура. Налични са детска градина, парк, магазини, супермаркет, аптека, градски транспорт, а през 2024–2025 г. се изграждат нова детска градина, нови улици, тротоари, паркинги и зелени площи. Районът се развива динамично, с общински инвестиции в инфраструктура и нови зони за отдих.

Картала е чудесен избор както за семейства с деца, така и за инвеститори, търсещи дългосрочна стойност, тишина, чист въздух и удобства на ръка разстояние.

Код на офертата: 0118

Ние от Монс Пропъртис можем да Ви съдействаме със следните услуги:

 -Безплатно посредничество при кредитиране

от всички банки

-Юридически услуги

One bedroom apartment, in a newly constructed gated residential complex in. “Kartala”, gr. In a new building in the residential area of Kartalovo.

NO COMMISSION FROM THE BUYER!!!

Mons Properties is pleased to present for sale a one bedroom apartment in a newly constructed gated residential complex in Kv. “Kartala”, town of. The property is located in a residential complex in Carta Street, Veliko Tarnovo.

Total area of the property 69 sq.m. , as the floor area is 59 sq.m.

Situated on the fifth floor of a six-storey, newly built brick building with elegant appearance and high-end materials used in the construction.

The layout is as follows:Entrance hall, living room with kitchenette, bedroom, bathroom with toilet and terrace.

BUILDING EAST: Stage – Apartment 14

Expected Act 15-September, Expected Act 16-May 2026.

Option to purchase underground garage or parking space with flexible payment schemes.

Aesthetics and comfort – in two boutique buildings EAST and WEST tucked away in the periphery of the prestigious district. “Kartala”, town of. Close to a park and a newly built kindergarten.

-Controlled access to the complex via fingerprint or chip. Spanish granite, natural stone, PVC windows anthracite with triple glazing, Greek bricks KEBE, external insulation BAUMIT, EPS styrofoam, plaster and plaster.

Each apartment has a terrace with a glass railing with removable mechanism that allows raising and lowering by remote control. An amenity that combines modern design and practicality, uncompromising construction with a flair for the smallest detail.

Offered is a functionally distributed one bedroom apartment also located on the 6th floor in the building “East”.

Kv. Kartala is located in one of the highest and panoramic parts of Veliko Tarnovo, with beautiful views of Tsarevets

Детайли

Обновено на януари 1, 1970 в 12:00 am
  • Цена: 99,900€
  • Квадратура: 69 кв.м
  • Стаи: 2
  • Година на строителство: 2005
  • Тип на имота: Апартамент
  • Операция: За продажба

Допълнителни детайли

  • Строителство: Тухла
  • Етаж: 5-ти
  • Брой етажи на сградата: 6
  • Отопление: Електричество
  • Обзавеждане: Необзаведен
  • Състояние на сградата: Завършена
  • Преход: Без преход
  • Град Велико Търново
  • Област Област Велико Търново
  • Квартал Картала
  • Държава България

0 Отзив

Sort by:
Leave a Review

    Leave a Review

    Compare listings

    Сравняване
    Olx Недвижими Имоти
    • Olx Недвижими Имоти