Компания ‘X’ представя на Вашето внимание двустаен апартамент в кв. Изгрев.
МЕСТОПОЛОЖЕНИЕ: В близост до магазини за хранителни стоки, спирка на градски транспорт, основни пътни артерии.
СТРОИТЕЛСТВО: Апартаментът се намира на 3-ти етаж в тухлена сграда.
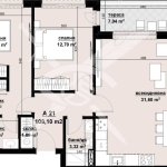
РАЗПРЕДЕЛЕНИЕ: Жилището разполага с площ от 61 кв.м. разпределена в дневна с кухненски бокс, спалня, баня с тоалетна, тераса, склад.
СЪСТОЯНИЕ: На шпакловка и замазка.
Заповядайте да Ви го покажем. Използвайки нашите услуги Вие ще превърнете закупуването на новия си дом в едно приятно изживяване, ще получите персонален консултант, съдействие при кандидатстване за кредит от всички банки в България, интериорни дизайнери и екип, който да се погрижи за нужните документи по Вашата сделка. На Ваше разположение сме всеки ден, от понеделник до неделя от 09:00 до 20:00ч. Възползвайте се от безплатна консултация в наш офис, където ще ви спестим време и ще ви запознаем с всички актуални имоти в България, отговарящи на Вашето търсене. Свържете се с нас на 0700 70 797 /на цената на един градски разговор/ или на 08******83 и цитирайте кода към имота: 524 – 18414
Compare listings
Сравняване