Код на обявате 7471
Нова, модерна сграда
Едностаен апартамент
Зелени площи, детски кътове, зона за отдих
Удобна локация, с бърз и лесен достъп до града
Открити и закрити паркоместа
Модерна архитектура с функционално разпределени помещения
Доказан строител
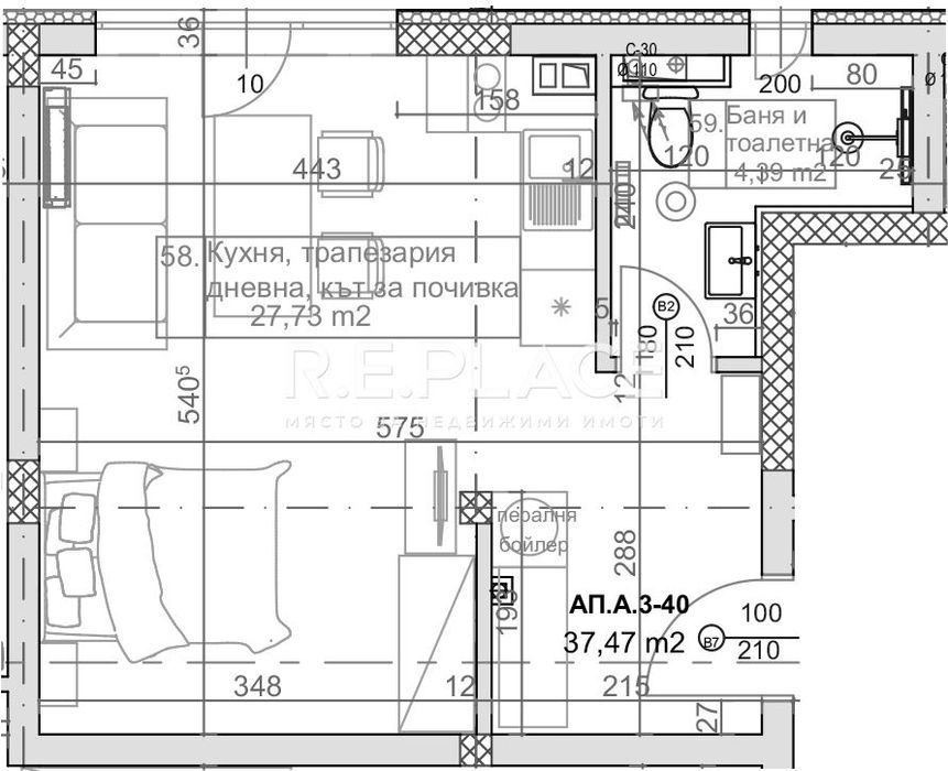
Предлагаме ви за продажба едностаен апартамент в к.к. Слънчев ден, гр. Варна.
Апартраментът е разположен на четвърти етаж и се състои от:
– Кухня, трапезария, дневна с кът за спане
– Санитарен възел
Имотът се продава завършен по БДС.
Входът е с контрол на достъпа и асансьор.
Свободни за продажба са също така двустайни, тристайни и четиристайни апартаменти, с възможност за избор по вид и етаж, гаражи и паркоместа, които също ще бъдат завършени по БДС.
Изпълнението на общите части на сградата ще бъде луксозно, с използване на висококачествени материали.
Срокът за завършване на сградата е 30 април 2027 година.
За повече информация, моля свържете се с нас на посоченият телефон!
Compare listings
Сравняване