Продава се Едностаен апартамент в София, Полигона – 48 кв.м за 3030 €/кв.м

  • 145,400€
  • 3,029€/m²
Област София-град, гр. София, Полигона
  • Апартамент
  • Тип на имота
  • 48
  • кв.м
  • 2026
  • Година на строителство
За продажба Агенция
Област София-град, гр. София, Полигона
  • 145,400€
  • 3,029€/m²

Накратко за имота

  • Апартамент
  • Тип на имота
  • 48
  • кв.м
  • 2026
  • Година на строителство

Описание

КУПИ ЗА EUR 545 на месец!

За да не изпуснете този имот, обадете се сега и цитирайте този код: 27066.

’БЕСТ СЕЛЪРС’ предлага на Вашето внимание едностаен апартамент в ж.к. ”Полигона”.

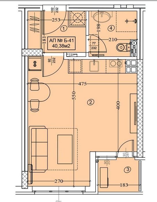
РАЗПРЕДЕЛЕНИЕ: Еднопространствено жилище със санитарен възел.

СГРАДА: Сградата се очаква да бъде въведена в експлоатация през 2026 година. Етаж 8/9.

ЛОКАЦИЯ: ж.к. ”Полигона”. Апартаментът се намира в нова сграда, разположена в непосредствена близост до СБАЛ по очни болести, Бизнес център, Търговски център ”Дъ мол”, хипермаркет ”Мосю Бриколаж” и супермаркет ”Про Маркет”. Районът е комуникативен, разполага с големи и малки магазини, заведения и спирки на градски транспорт. Не попада в платена зона за паркиране. Бърз и лесен достъп до бул. ”Цариградско шосе”.

’БЕСТ СЕЛЪРС’ е Вашият партньор при сключването на сделка с недвижим имот от първия оглед до финалния подпис. Екипът ни от професионалисти е твърдо решен да промени представата Ви за пазара на недвижими имоти и да Ви остави с приятни емоции след приключването на една от най-важните сделки в живота Ви. Можете да разчитате на нас за ПЪЛНО съдействие в търговските преговори, абсолютно прозрачна обстойна проверка на историята на имота за целия период, консултация и набавяне на пълния пакет документация, необходими за финализиране. На купувачите, разчитащи на банков кредит сме готови да осигурим НАПЪЛНО БЕЗПЛАТНО професионално кредитно обслужване от водещи НЕЗАВИСИМИ кредитни посредници. ОДОБРЕНИЕ ДО 24 часа

Детайли

Обновено на януари 1, 1970 в 12:00 am
  • Цена: 145,400€
  • Квадратура: 48 кв.м
  • Стая: 1
  • Година на строителство: 2026
  • Тип на имота: Апартамент
  • Операция: За продажба

Допълнителни детайли

  • Строителство: Тухла
  • Етаж: 8-ми
  • Брой етажи на сградата: 9
  • Отопление: ТЕЦ
  • Обзавеждане: Необзаведен
  • Състояние на сградата: Завършена
  • Преход: Без преход
  • Град София
  • Област Област София-град
  • Квартал Полигона
  • Държава България

0 Отзив

Sort by:
Leave a Review

    Leave a Review

    Compare listings

    Сравняване
    Olx Недвижими Имоти
    • Olx Недвижими Имоти