Компания `ЕКС` представя на Вашето внимание едностаен апартамент в ж.к. Студентски град.
МЕСТОПОЛОЖЕНИЕ: В близост до НСА, спирка на градски транспорт, детска градина, училище, магазини от всякакъв тип.
СТРОИТЕЛСТВО: Апартаментът е ситуиран на 2-ри етаж в новострояща се сграда с очакван АКТ 16 в средата на 2026 г.
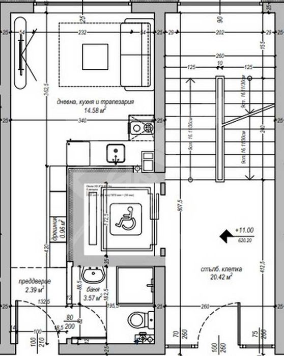
РАЗПРЕДЕЛЕНИЕ: Жилището разполага с площ от 32 кв.м., разпределена във входно антре, всекидневна с кухненски бокс и спален кът, баня с тоалетна.
СЪСТОЯНИЕ: На шпакловка и замазка.
ОСОБЕНОСТИ: Възможност за закупуване на подземен гараж, надземно или подземно паркомясто. Схемата на плащане може да бъде обсъдена.
Заповядайте да Ви го покажем. Използвайки нашите услуги Вие ще превърнете закупуването на новия си дом в едно приятно изживяване, ще получите персонален консултант, съдействие при кандидатстване за кредит от всички банки в България, интериорни дизайнери и екип, който да се погрижи за нужните документи по Вашата сделка. На Ваше разположение сме всеки ден, от понеделник до неделя от 09:00 до 20:00ч. Възползвайте се от безплатна консултация в наш офис, където ще ви спестим време и ще ви запознаем с всички актуални имоти в България, отговарящи на Вашето търсене. Свържете се с нас на 08*********90 или на 08*********57 и цитирайте кода към имота: 68480.
Compare listings
Сравняване