Предлагаме Ви едностаен апартамент за продажба в централната част на ж.к. Чайка, гр. Варна.
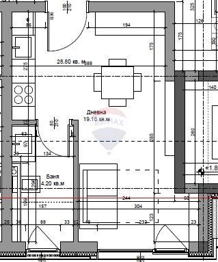
Жилището е с чиста площ от 28,20 кв.м, представляваща просторна стая с френски прозорци, осигуряващи обилна естествена светлина и усещане за простор. Разпределението позволява функционално обособяване на отделни кътове за спане, отдих и хранене. Имотът разполага и с комбиниран санитарен възел.
Апартаментът се издава по БДС. Сградата е пред Акт 15 и се отличава с качествено строителство, използване на висок клас материали и съвременна технология на изпълнение. Архитектурата е модерна, стилна и функционална, отговаряща на всички изисквания на съвременния градски живот.
Имотът е разположен на втори етаж в десететажна тухлена сграда.
Сградата се намира в една от най-предпочитаните локации на гр. Варна пазарчето на ж.к. Чайка. Районът предлага перфектна комбинация между спокойствие и удобство, само на няколко минути пеша от Морската градина, Спортна зала, Плажната алея, както и множество търговски обекти, училища, детски градини и спирки на градския транспорт.
Това прави имота изключително подходящ както за лично ползване, така и като инвестиция с бърза възвръщаемост.
Compare listings
Сравняване