Продава се Едностаен апартамент в Варна, м-т Пчелина – 41 кв.м за 1098 €/кв.м

  • 45,000€
  • 1,098€/m²
Област Варна, гр. Варна, м-т Пчелина
  • Апартамент
  • Тип на имота
  • 41
  • кв.м
  • 2024
  • Година на строителство
За продажба Агенция
Област Варна, гр. Варна, м-т Пчелина
  • 45,000€
  • 1,098€/m²

Накратко за имота

  • Апартамент
  • Тип на имота
  • 41
  • кв.м
  • 2024
  • Година на строителство

Описание

Компания `ЕКС` представя на Вашето внимание едностаен апартамент в един от най-предпочитаните за живеене и инвестиция райони на град Варна- м-т Пчелина.

МЕСТОПОЛОЖЕНИЕ: Лесен и бърз достъп до главни пътни артерии, административни учреждения, банки, училища, детски градини, автобусни спирки, детски площадки, аптеки, търговски центрове, супермаркети, козметични студия, заведения и туристически атракции.

СТРОИТЕЛСТВО: Апартаментът е ситуиран на 3-ти етаж в сграда ново строителство .

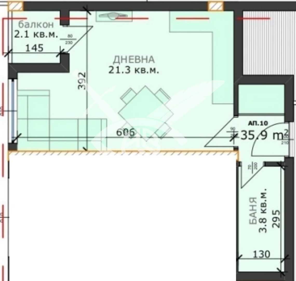
РАЗПРЕДЕЛЕНИЕ: Жилището разполага с площ от 41 кв.м., разпределена в антре, дневна с кухненски бокс и спален кът, баня с тоалетна и тераса.

СЪСТОЯНИЕ: На шпакловка и замаска.

ОСОБЕНОСТИ : КЪМ АПАРТАМЕНТА МОЖЕ ДА СЕ ЗАКУПИ ПАРКОМЯСТО ИЛИ ГАРАЖ !

Заповядайте да Ви го покажем. Използвайки нашите услуги Вие ще превърнете закупуването на новия си дом в едно приятно изживяване, ще получите персонален консултант, съдействие при кандидатстване за кредит от всички банки в България, интериорни дизайнери и екип, който да се погрижи за нужните документи по Вашата сделка. На Ваше разположение сме всеки ден, от понеделник до неделя от 09:00 до 20:00ч. Възползвайте се от безплатна консултация в наш офис, където ще ви спестим време и ще ви запознаем с всички актуални имоти в България, отговарящи на Вашето търсене. Свържете се с нас на 08******90 /на цената на един градски разговор/ или на 08******11 и цитирайте кода към имота: 428-15294.

Детайли

Обновено на януари 1, 1970 в 12:00 am
  • Цена: 45,000€
  • Квадратура: 41 кв.м
  • Стая: 1
  • Година на строителство: 2024
  • Тип на имота: Апартамент
  • Операция: За продажба

Допълнителни детайли

  • Строителство: Тухла
  • Етаж: 3-ти
  • Брой етажи на сградата: 9
  • Отопление: Без отопление
  • Обзавеждане: Необзаведен
  • Състояние на сградата: В строеж
  • Преход: Без преход
  • Град Варна
  • Област Област Варна
  • Квартал м-т Пчелина
  • Държава България

0 Отзив

Sort by:
Leave a Review

    Leave a Review

    Compare listings

    Сравняване
    Olx Недвижими Имоти
    • Olx Недвижими Имоти