Продава се Едностаен апартамент в Варна, Възраждане 1 – 52 кв.м за 943 €/кв.м

  • 49,000€
  • 942€/m²
Област Варна, гр. Варна, Възраждане 1
Продава се Едностаен апартамент в Варна, Възраждане 1 - 52 кв.м за 943 €/кв.м - Снимка #4
  • Апартамент
  • Тип на имота
  • 52
  • кв.м
  • 2025
  • Година на строителство
За продажба Агенция
Област Варна, гр. Варна, Възраждане 1
  • 49,000€
  • 942€/m²

Накратко за имота

  • Апартамент
  • Тип на имота
  • 52
  • кв.м
  • 2025
  • Година на строителство

Описание

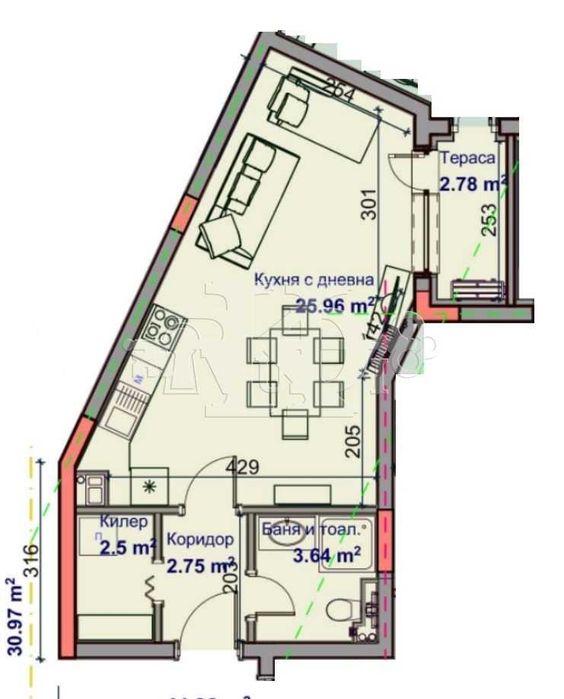
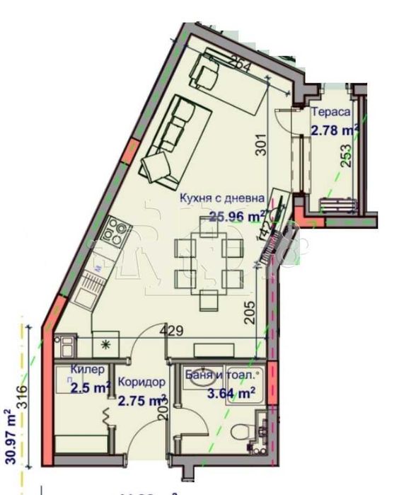
Предлагаме голям едностаен апартамент, находящ се в кв. Възраждане 1 в близост до бул. Цар Освободител на етаж шести жилищен. Имотът се състои от входно антре, голям дневен тракт с кухненска част, тераса, килер, баня с тоалет. Жилището е с обща площ от 52 кв.м и е с източно изложение. Завършването е по БДС. Предвижданото финализиране на сградата е края на 2025-та година.

Жилищна сграда “ФРЕЯ” е разположена в южната част на кв. Възраждане 1 на метри от бул. Цар Освободител. В близост има училища, детски градини, търговски центрове, спирки на градски транспорт и др. Недалеч е и парка на кв. Възраждане 1.

В сградата се предлагат едностайни, двустайни и тристайни апартаменти с варианти на разсрочено плащане, според нуждите на клиентите.

Детайли

Обновено на януари 1, 1970 в 12:00 am
  • Цена: 49,000€
  • Квадратура: 52 кв.м
  • Стая: 1
  • Година на строителство: 2025
  • Тип на имота: Апартамент
  • Операция: За продажба

Допълнителни детайли

  • Строителство: Тухла
  • Етаж: 6-ти
  • Брой етажи на сградата: 6
  • Отопление: Електричество
  • Обзавеждане: Необзаведен
  • Състояние на сградата: В строеж
  • Преход: Без преход

Особености

  • Град Варна
  • Област Област Варна
  • Квартал Възраждане 1
  • Държава България

0 Отзив

Sort by:
Leave a Review

    Leave a Review

    Compare listings

    Сравняване
    Olx Недвижими Имоти
    • Olx Недвижими Имоти