Компания `ЕКС НВД` представя на Вашето внимание етаж от къща в един от най-бързо развиващите райони на морската столицата- кв. Аспарухово.
МЕСТОПОЛОЖЕНИЕ: В близост до спирка на градски транспорт, училище, детска градина, парк, магазини от всякакъв тип.
СТРОИТЕЛСТВО: Жилищто е ситуирано на 3-ти етаж в тухлена къща от 2005г.
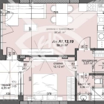
РАЗПРЕДЕЛЕНИЕ: Жилището разполага с площ от 140 кв.м., разпределена във входно антре с вграден гардероб, хол с кухненски бокс, две спални с обща тераса, баня, отделна тоалетна, килер и още една остъклена тераса.
СЪСТОЯНИЕ: ЧАСТИЧНО ОБЗАВЕДЕН.
ОСОБЕНОСТИ: Към имота има таванско помещение. Има възможност за разширение с още една стая – 21 м2.
Заповядайте да Ви го покажем. Използвайки нашите услуги Вие ще превърнете закупуването на новия си дом в едно приятно изживяване, ще получите персонален консултант, съдействие при кандидатстване за кредит от всички банки в България, интериорни дизайнери и екип, който да се погрижи за нужните документи по Вашата сделка. На Ваше разположение сме всеки ден, от понеделник до неделя от 09:00 до 20:00ч. Възползвайте се от безплатна консултация в наш офис, където ще ви спестим време и ще ви запознаем с всички актуални имоти в България, отговарящи на Вашето търсене. Свържете се с нас на 0700 707 97 /на цената на един градски разговор/ или на 08******41 и цитирайте кода към имота : 46262.
Compare listings
Сравняване