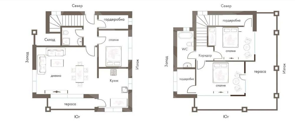
Компания “ЕКС” представя на Вашето внимание къща в Сарафово. МЕСТОПОЛОЖЕНИЕ: В близост до магазини за хранителни стоки, спирка на градски транспорт, основни пътни артерии. РАЗПРЕДЕЛЕНИЕ: Къщата разполага с площ от 200 кв.м., разпределена в два етажа като първия етаж се състои от кухня, просторна всекидневна, спалня, баня с тоалетна, коридор, гардеробна, складово помещение, веранда и втори етаж, който се състои от две спални, гардеробна, кабинет, баня с тоалетна, тераса с прекрасна морска панорама. СЪСТОЯНИЕ: На шпакловка и замазка. Заповядайте да Ви го покажем. Използвайки нашите услуги Вие ще превърнете закупуването на новия си дом в едно приятно изживяване, ще получите персонален консултант, съдействие при кандидатстване за кредит от всички банки в България, интериорни дизайнери и екип, който да се погрижи за нужните документи по Вашата сделка. На Ваше разположение сме всеки ден, от понеделник до неделя от 09:00 до 20:00ч. Възползвайте се от безплатна консултация в наш офис, където ще ви спестим време и ще ви запознаем с всички актуални имоти в България, отговарящи на Вашето търсене. Нужен Ви е само кодът към имота: 43237
Compare listings
Сравняване