Компания Х представя на Вашето внимание къща в местността Лахана, Сарафово.
МЕСТОПОЛОЖЕНИЕ: Семейства, които търсят удобен дом близо до морето, както и за инвеститори, които искат да завършат проекта по собствен вкус и нужди. Не пропускайте възможността да притежавате свой дом в един от най-желаните райони!
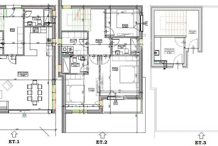
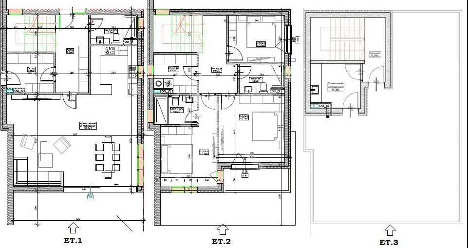
СТРОИТЕЛСТВО: Къщата е на три етажа, тухла.
РАЗПРЕДЕЛЕНИЕ: Имота разполага с площ 319,36 кв.м.
СЪСТОЯНИЕ: Имотът се предлага както на тапа, така и на степен до ключ,
което Ви дава възможността да го усторите по Ваш вкус и да го превърнете
в мечтания дом!
Заповядайте да Ви го покажем. Използвайки нашите услуги Вие ще
превърнете закупуването на новия си дом в едно приятно изживяване, ще
получите персонален консултант, съдействие при кандидатстване за кредит
от всички банки в България, интериорни дизайнери и екип, който да се
погрижи за нужните документи по Вашата сделка. На Ваше разположение сме
всеки ден, от понеделник до неделя от 09:00 до 20:00ч. Възползвайте се
от безплатна консултация в наш офис, където ще ви спестим време и ще ви
запознаем с всички актуални имоти в България, отговарящи на Вашето
търсене. Свържете се с нас на 08******90 или на 08******83 и цитирайте
кода към имота: 692- 21798
Compare listings
Сравняване