Продава се Къща в Пловдив, Беломорски – 156 кв.м за 1359 €/кв.м

  • 212,000€
  • 1,359€/m²
Област Пловдив, гр. Пловдив, Беломорски
  • Къща
  • Тип на имота
  • 156
  • кв.м
  • 2027
  • Година на строителство
За продажба Агенция
Област Пловдив, гр. Пловдив, Беломорски
  • 212,000€
  • 1,359€/m²

Накратко за имота

  • Къща
  • Тип на имота
  • 156
  • кв.м
  • 2027
  • Година на строителство

Описание

Компания X представя на Вашето внимание двуетажна къща в Беломорски.

МЕСТОПОЛОЖЕНИЕ: Беломорски е квартал на Пловдив, разположен в южната част на града. Той е един от по-новите и бързоразвиващи се жилищни райони, предлагащ комбинация от съвременна инфраструктура и удобства в близост до природата. Кварталът е добре свързан с останалата част на града чрез автобусни линии и основни пътища. В Беломорски се изграждат много нови жилищни комплекси и модерни сгради, които предлагат удобства. Жилищата в района са разнообразни, като се предлагат както апартаменти, така и къщи.

СТРОИТЕЛСТВО: Къщата е на два етажа и е ново строителство.

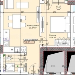
РАЗПРЕДЕЛЕНИЕ: Разполага с площ от 156 кв.м. разпределена по следния начин: на първия етаж: ж,веранда, входно антре, просторна всекидневна с кухненски бокс и тоалетна, на втория етаж: три спални, две бани с тоалетни , мокро помещение и тераса

СЪСТОЯНИЕ: В строеж.

Заповядайте да Ви го покажем. Използвайки нашите услуги Вие ще превърнете закупуването на новия си дом в едно приятно изживяване, ще получите персонален консултант, съдействие при кандидатстване за кредит от всички банки в България, интериорни дизайнери и екип, който да се погрижи за нужните документи по Вашата сделка. На Ваше разположение сме всеки ден, от понеделник до неделя от 09:00 до 20:00ч. Възползвайте се от безплатна консултация в наш офис, където ще ви спестим време и ще ви запознаем с всички актуални имоти в България, отговарящи на Вашето търсене. Свържете се с нас на 08******90 или на 08******90 и цитирайте кода към имота: 1080-31504

Детайли

Обновено на януари 1, 1970 в 12:00 am
  • Цена: 212,000€
  • Квадратура: 156 кв.м
  • Земя: 166 кв.м
  • Година на строителство: 2027
  • Тип на имота: Къща
  • Операция: За продажба

Допълнителни детайли

  • Строителство: Тухла
  • Брой етажи на сградата: 2
  • Отопление: Електричество
  • Състояние на сградата: В строеж
  • Град Пловдив
  • Област Област Пловдив
  • Квартал Беломорски
  • Държава България

0 Отзив

Sort by:
Leave a Review

    Leave a Review

    Compare listings

    Сравняване
    Olx Недвижими Имоти
    • Olx Недвижими Имоти