Компания `Х` представя на Вашето внимание къща в Беломорски!
МЕСТОПОЛОЖЕНИЕ: Беломорски предлага тишина и спокойствие, далеч от шума на центъра, но същевременно с бърз достъп до града. В района има много зелени площи, което го прави идеален за семейства и хора, търсещи уединение. Тихата и безопасна среда, комбинирана с наличието на детски градини и училища наблизо, прави квартала идеален за семейства с деца.
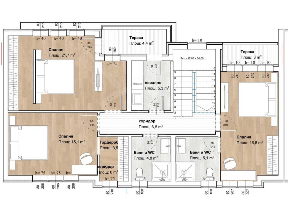
РАЗПРЕДЕЛЕНИЕ: Разполага с площ от 224 кв.м. и двор 90 кв.м.
Заповядайте да Ви го покажем. Използвайки нашите услуги Вие ще превърнете закупуването на новия си дом в едно приятно изживяване, ще получите персонален консултант, съдействие при кандидатстване за кредит от всички банки в България, интериорни дизайнери и екип, който да се погрижи за нужните документи по Вашата сделка. На Ваше разположение сме всеки ден, от понеделник до неделя от 09:00 до 20:00ч. Възползвайте се от безплатна консултация в наш офис, където ще ви спестим време и ще ви запознаем с всички актуални имоти в България, отговарящи на Вашето търсене. Свържете се с нас на 08******90 или на 08******90 и цитирайте кода към имота: 77274
Compare listings
Сравняване